Valutazione immobiliare indipendente, accurata e gratuita
Appartamento in vendita a Cividate al Piano a 105.000 € (cod.64f87a09)
Caasa non ha sufficienti informazioni per commentare l'appartamento in vendita a Cividate al Piano - 64f87a09.
Analisi immobiliare
I dati in posseso di Caasa per quest'immobile sono insufficienti, inaffidabili o contraddittori per proporre un'analisi attendibile.
Mercato immobiliare a Cividate al Piano
Per quanto riguarda più in generale il comune di Cividate al Piano, sono presenti al momento più di trenta annunci per
appartamenti in vendita (meno dell'1% dell'intera provincia) .
Relativamente alla dinamica dei prezzi, possiamo dire che negli ultimi 6 mesi i prezzi medi in tutto il comune per appartamenti in vendita sono
in forte aumento (+19,88%).
NOVITÀ Il risultato che vedi dipende dai dati che siamo riusciti ad estrarre dall'annuncio: ottieni una stima più accuranta di questo immobile, inserendo dati più precisi.
N.B. L'Opinione di Caasa® è un servizio sperimentale realizzato tramite tecniche di Intelligenza Artificiale, fornito senza alcuna garanzia di correttezza e completezza. Leggi il disclaimer o segnalaci un problema.
IMMAGINI
IN SINTESI
PROPOSTO DA:
Neovit s.r.l. Consulting
DESCRIZIONE
di recente costruzione con terrazza con cantina con balcone di recente ristrutturazione con angolo cottura in asta giudiziaria di recente costruzione
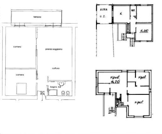
Nel fabbricato avente accesso da viale Rimembranze n. 32, appartamento ai piani terra e primo, piani tra loro collegati mediante scala interna esclusiva, composto da ingresso, sala pranzo con angolo cottura, soggiorno con ripostiglio, bagno, lavanderia e disimpegno, con annesso pertinenziale portico d'ingresso con ripostiglio al piano terra; due camere, bagno, ripostiglio e balcone al piano primo. ASTE IMMOBILIARI: Per informazioni e visite immobiliari contattare il numero 030/6363111. L'immobile viene venduto dal tribunale tramite asta giudiziaria e il prezzo indicato si riferisce all’offerta minima. Inoltre, per chi acquista come prima casa, sono previste ulteriori e vantaggiose agevolazioni. NEOVIT srl consulting è una società di consulenza che accompagna il cliente in tutto il percorso relativo all'acquisto tramite asta giudiziaria, abilitata anche nel ritiro dei crediti immobiliari. Contattaci per avere tutte le informazioni necessarie, i nostri consulenti sono a tua disposizione per accompagnarti dalla ricerca dell' immobile fino alla consegna delle chiavi, compreso l'eventuale assistenza per l'ottenimento di un mutuo. Il nostro staff è formato da professionisti del settore con competenze diverse, in grado di fornire una consulenza e assistenza a 360 gradi sia da un punto di vista tecnico-immobiliare legale. Il progetto NPL nasce nel nostro studio nel 2022 con l'intento ed al fine di massimizzare il recupero del credito deteriorato attraverso le chiusure stragiudiziali dei contenziosi o incentivando la partecipazione alle aste. L’acquisto di crediti NPL permette di: -di acquistare crediti con garanzia ipotecaria a un prezzo vantaggioso (anche al 50% in meno sull’importo di mercato) -riqualificare gli immobili acquistati con appositi interventi di ristrutturazione allo scopo di accrescerne il valore -ottenere un ritorno certo dai crediti deteriorati in tempi ragionevoli grazie alle diverse exit strategy La nostra prestazione non si configura come attività di intermediazione, in quanto persegue esclus[…]

