Valutazione immobiliare indipendente, accurata e gratuita
Casa indipendente in vendita a Castione della Presolana a 99.000 € (cod.64e337f4)
Caasa non ha sufficienti informazioni per commentare la casa indipendente a Castione della Presolana - 64e337f4.
Analisi immobiliare
I dati in posseso di Caasa per quest'immobile sono insufficienti, inaffidabili o contraddittori per proporre un'analisi attendibile.
Mercato immobiliare a Castione della Presolana
Per quanto riguarda più in generale il comune di Castione della Presolana, sono presenti al momento più di 150 annunci per
case indipendenti in vendita (meno del 5% dell'intera provincia) .
Per quanto riguarda la dinamica dei prezzi, negli ultimi 6 mesi i prezzi medi in tutto il comune per case indipendenti in vendita sono
in debole diminuzione (-2,07%).
NOVITÀ Il risultato che vedi dipende dai dati che siamo riusciti ad estrarre dall'annuncio: ottieni una stima più accuranta di questo immobile, inserendo dati più precisi.
N.B. L'Opinione di Caasa® è un servizio sperimentale realizzato tramite tecniche di Intelligenza Artificiale, fornito senza alcuna garanzia di correttezza e completezza. Leggi il disclaimer o segnalaci un problema.
IMMAGINI
IN SINTESI
DESCRIZIONE
da ristrutturare con posto auto con terrazza con giardino con garage con cantina da ristrutturare con cortile
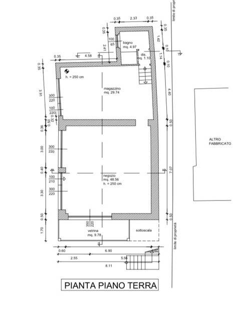
OLTRE IL SEMPLICE ABITARE Real Estate propone in Castione della Presolana interessante soluzione singola da ristrutturare con progetto già realizzato ed approvato, a disposizione dell'acquirente. L'immobile è disposto su tre livelli: - piano terra: locale commerciale, veranda, box, ripostiglio cortile ed ampio giardino di proprietà di ca 450 mt - piano primo: tre stanze, soggiorno/cucina e bagno - piano secondo: solaio (altro piano abitativo) L'immobile necessita di una ristrutturazione completa con rifacimento tetto, isolamento e solette. Come già anticipato c'è un progetto di cui alleghiamo i le piantine già depositato ed approvato che prevede una parte commerciale, un'autorimessa e due piani abitativi, comprensivo di posti auto esterni. Nel progetto è stata prevista un'attività commerciale al piano terra con relativa veranda e magazzino, ma in base alle proprie necessità si può trasformare tutto l'edificio in residenziale. Forniamo un supporto per ogni tipo di esigenza e necessità in merito al progetto di ristrutturazione mettendovi in contatto con il geometra che ha seguito tutto l'iter progettuale. L'immobile presenta ottime potenzialità e si trova in posizione soleggiata e comoda per tutti i servizi. Nell'annuncio sono stati inseriti render del progetto ed ipotesi di arredo. Richiesta 99.000 euro nello stato di fatto

