Valutazione immobiliare indipendente, accurata e gratuita
L'Opinione di Caasa® per la casa indipendente in vendita a Casirate d'Adda a 385.000 € (cod.64c70096)
Secondo Caasa, per la casa indipendente in vendita a Casirate d'Adda, la richiesta di 385.000 € è significativamente vantaggiosa rispetto agli annunci simili.
Analisi immobiliare
La casa indipendente, situata nella zona OMI B1, è proposta in vendita a
385.000 € per una
superficie commerciale di
215 m² e quindi ad un prezzo per metro quadrato pari a
1790 €/m²
.
Questo prezzo
è più vantaggioso di quello stimato da Caasa per immobili in vendita simili per tipologia e caratteristiche, presenti nella stessa zona, che è compreso tra
2.119 €/m² e
2.277 €/m².
Data la posizione della casa indipendente sono stati utilizzati come raffronto i valori medi nelle zone limitrofe . Caasa non è stata in grado di determinare la classe energetica, ma ad affinare la stima hanno contribuito però anche lo stato dell'immobile (di nuova costruzione) e la presenza di alcune caratteristiche significative come la disponibilità di una cantina. Per queste considerazioni l'intervallo dei valori possibili per l'offerta è relativamente ampio.
Mercato immobiliare a Casirate d'Adda
Per quanto riguarda più in generale il comune di Casirate d'Adda, sono presenti al momento più di cinquanta annunci per
case indipendenti in vendita (meno dell'1% dell'intera provincia) .
Possiamo inoltre considerare che in tutto il comune negli ultimi 6 mesi, i prezzi per case indipendenti in vendita sono
in forte aumento (+23,25%).
NOVITÀ Il risultato che vedi dipende dai dati che siamo riusciti ad estrarre dall'annuncio: ottieni una stima più accuranta di questo immobile, inserendo dati più precisi.
N.B. L'Opinione di Caasa® è un servizio sperimentale realizzato tramite tecniche di Intelligenza Artificiale, fornito senza alcuna garanzia di correttezza e completezza. Leggi il disclaimer o segnalaci un problema.
IMMAGINI
IN SINTESI
PROPOSTO DA:
Roberto Mancini Servizi Immobiliari S.R.L.
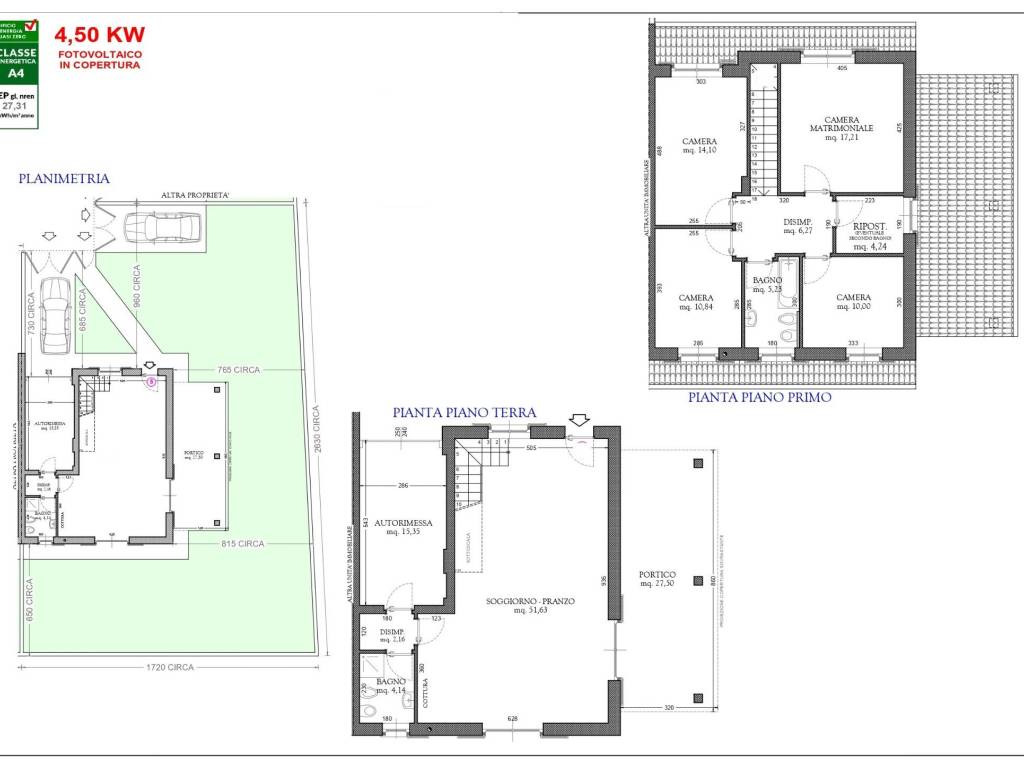
DESCRIZIONE
di nuova costruzione con giardino con cantina con termocondizionamento di nuova costruzione di recente ristrutturazione
EPgl,nren: 11,20 kWh/m² - A CASIRATE D'ADDA, in NUOVA ZONA RESIDENZIALE di prestigio, Immobiliare Mancini propone NUOVA COSTRUZIONE - BELLISSIMA VILLA SU DUE LIVELLI CON GIARDINO ESCLUSIVO + BOX SINGOLO FUORI TERRA. - IMMAGINI CAMPIONE INDICATIVE - L'immobile, di NUOVA COSTRUZIONE 2024, si troverà in contesto residenziale di sole ville. In FASE DI COSTRUZIONE e IN PRONTA CONSEGNA A DICEMBRE 2026! La villa, in , è composta da ingresso in ampio e luminoso soggiorno e ampia cucina A VISTA con sbarco su PORTICO di 27 mq e GIARDINO ESCLUSIVO di 308 mq circa che circonda l'immobile su tre lati, disimpegno e bagno. Tramite scala si accede al PIANO PRIMO dove troviamo CAMERA MATRIMONIALE, tre camere da letto, bagno e ripostiglio adibito ad eventuale lavanderia. A completare la proprietà, BOX SINGOLO di 14 mq fuori terra con accesso diretto all'immobile. Accatastamenti ed allacciamenti fuori dal prezzo di vendita, per un importo di € 5.000,00. Questa unità abitativa sarà COMPLETAMENTE INDIPENDENTE e CON ALTA POSSIBILITA' DI PERSONALIZZAZIONE. Accessoriata di impianto fotovoltaico ampliabile, pompa di calore già fornita con predisposizione climatizzazione estiva, riscaldamento "a pavimento", predisposizione sistema di allarme. Possibilità soluzione interamente elettrica e dotata di impianto fotovoltaico e di installare un accumulatore di corrente con il quale è possibile abbattere ulteriormente i costi di gestione. Capitolato dettagliato, con relativi riferimenti tecnici e finiture di qualità garantita e possibilità di accesso a detrazioni fiscali e mutui tassi agevolati tipo "Green". L'unità immobiliare sorgerà vicino le scuole, fermata del bus e AUTOSTRADA A4. E' un ottima soluzione, perfetta sia per una coppia che desidera ampi spazi sia per una famiglia che cerca una soluzione adatta alle proprie esigenze! SE SIETE INTERESSATI NON ESITATE A CONTATTARE IMMOBILIARE MANCINI AI NUMERI 0262068566 O 3311211947, OPPURE LASCIATE UN MESSAGGIO ALLA MAIL ag.immobiliaremancini@gmail.com E VERRETE RICONTATTATI. CI TROVATE I


