Valutazione immobiliare indipendente, accurata e gratuita
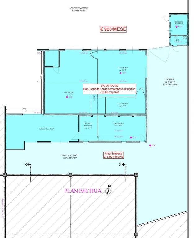
Locale commerciale in affitto a Caravaggio a 900 € mese (cod.6565c77c)
Caasa non ha sufficienti informazioni per commentare il locale commerciale in affitto a Caravaggio - 6565c77c.
Analisi immobiliare
I dati in posseso di Caasa per quest'immobile sono insufficienti, inaffidabili o contraddittori per proporre un'analisi attendibile.
Mercato immobiliare a Caravaggio
Per quanto riguarda più in generale la città di Caravaggio, sono presenti al momento meno di dieci annunci per
locali commerciali in affitto (meno del 5% dell'intera provincia) .
Vedi altre informazioni direttamente su
Mercato-Immobiliare.info
NOVITÀ Il risultato che vedi dipende dai dati che siamo riusciti ad estrarre dall'annuncio: ottieni una stima più accuranta di questo immobile, inserendo dati più precisi.
N.B. L'Opinione di Caasa® è un servizio sperimentale realizzato tramite tecniche di Intelligenza Artificiale, fornito senza alcuna garanzia di correttezza e completezza. Leggi il disclaimer o segnalaci un problema.

