Valutazione immobiliare indipendente, accurata e gratuita
Appartamento in vendita a Caprino Bergamasco a 73.284 € (cod.64fac061)
Caasa non ha sufficienti informazioni per commentare l'appartamento in vendita a Caprino Bergamasco - 64fac061.
Analisi immobiliare
I dati in posseso di Caasa per quest'immobile sono insufficienti, inaffidabili o contraddittori per proporre un'analisi attendibile.
Mercato immobiliare a Caprino Bergamasco
Per quanto riguarda più in generale il comune di Caprino Bergamasco, sono presenti al momento più di cento annunci per
appartamenti in vendita (meno dell'1% dell'intera provincia) .
Relativamente alla dinamica dei prezzi, possiamo dire che negli ultimi 6 mesi i prezzi medi in tutto il comune per appartamenti in vendita sono
in forte aumento (+13,30%).
NOVITÀ Il risultato che vedi dipende dai dati che siamo riusciti ad estrarre dall'annuncio: ottieni una stima più accuranta di questo immobile, inserendo dati più precisi.
N.B. L'Opinione di Caasa® è un servizio sperimentale realizzato tramite tecniche di Intelligenza Artificiale, fornito senza alcuna garanzia di correttezza e completezza. Leggi il disclaimer o segnalaci un problema.
IMMAGINI
IN SINTESI
PROPOSTO DA:
Case all'Asta
DESCRIZIONE
di recente costruzione con cantina in asta giudiziaria di recente costruzione con giardino
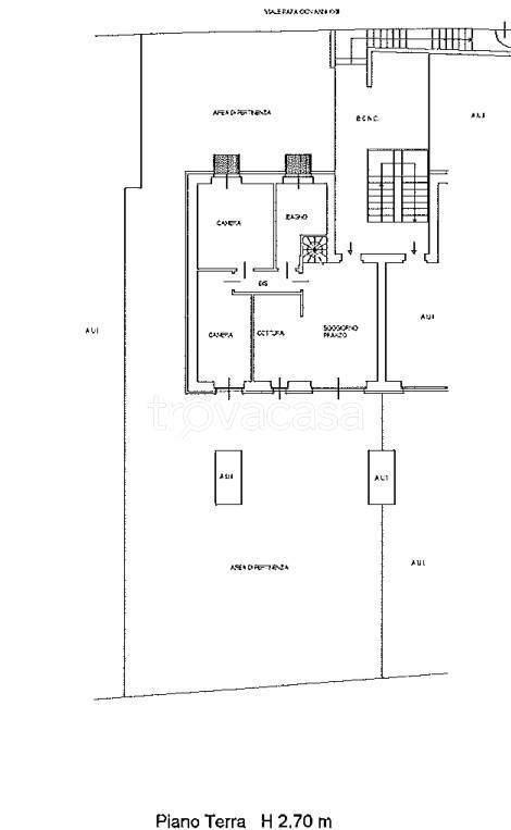
Appartamento al piano terra, composto di cucinasoggiorno, disimpegno, bagno e due camere, con annessa circostante area esterna, nonché cantina, bagno di servizio/lavanderia e disimpegno al piano interrato. Nessun costo di iscrizione con Case all'Asta […]
