Valutazione immobiliare indipendente, accurata e gratuita
L'Opinione di Caasa® per la casa indipendente in vendita a Calcio a 390.000 € (cod.6531e6b4)
Secondo Caasa, per la casa indipendente in vendita a Calcio, la richiesta di 390.000 € è leggermente vantaggiosa rispetto agli annunci simili.
Analisi immobiliare
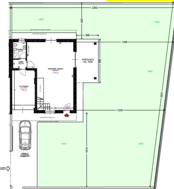
La casa indipendente, situata nella zona OMI B2, è proposta in vendita a
390.000 € per una
superficie commerciale di
187 m² e quindi ad un prezzo per metro quadrato pari a
2085 €/m²
.
Questo valore
è di poco inferiore a quello stimato da Caasa per immobili in vendita simili per tipologia, caratteristiche, classe energetica e zona, che è compreso tra
2.217 €/m² e
2.394 €/m².
Considerata la posizione della casa indipendente si sono utilizzati in raffronto i valori medi nelle zone limitrofe . Ad affinare la stima ha contribuito anche la classe energetica (A+) oltre alla conoscenza dello stato dell'immobile (di nuova costruzione). In virtù di queste considerazioni è possibile ottenere un intervallo di valori accettabili per l'offerta relativamente limitato.
Mercato immobiliare a Calcio
Per quanto riguarda più in generale il comune di Calcio, sono presenti al momento più di cinquanta annunci per
case indipendenti in vendita (meno dell'1% dell'intera provincia) .
Per quanto riguarda la dinamica dei prezzi, negli ultimi 6 mesi i prezzi medi in tutto il comune per case indipendenti in vendita sono
in sostanziale aumento (+6,37%).
NOVITÀ Il risultato che vedi dipende dai dati che siamo riusciti ad estrarre dall'annuncio: ottieni una stima più accuranta di questo immobile, inserendo dati più precisi.
N.B. L'Opinione di Caasa® è un servizio sperimentale realizzato tramite tecniche di Intelligenza Artificiale, fornito senza alcuna garanzia di correttezza e completezza. Leggi il disclaimer o segnalaci un problema.
IMMAGINI
IN SINTESI
DESCRIZIONE
di nuova costruzione con giardino di nuova costruzione
CALCIO: proponiamo in vendita una villa di nuova costruzione, progettata per offrire comfort e funzionalità. L'immobile, composto da quattro locali, assicura finiture moderne e impianti all'avanguardia. Gli interni sono studiati per accogliere la luce naturale, creando un ambiente accogliente e raffinato. La villa è circondata da un giardino privato, ideale per momenti di relax all'aperto. La posizione strategica nel comune di Calcio offre tranquillità e privacy, pur essendo ben collegata ai principali servizi e vie di comunicazione. Questa proprietà rappresenta un'opportunità unica per chi cerca una soluzione abitativa di qualità in un contesto esclusivo


