Valutazione immobiliare indipendente, accurata e gratuita
Appartamento in vendita a Calcinate a 95.000 € (cod.651f0291)
Caasa non ha sufficienti informazioni per commentare l'appartamento in vendita a Calcinate - 651f0291.
Analisi immobiliare
I dati in posseso di Caasa per quest'immobile sono insufficienti, inaffidabili o contraddittori per proporre un'analisi attendibile.
Mercato immobiliare a Calcinate
Per quanto riguarda più in generale il comune di Calcinate, sono presenti al momento circa cento annunci per
appartamenti in vendita (meno dell'1% dell'intera provincia) .
Relativamente alla dinamica dei prezzi, possiamo dire che negli ultimi 6 mesi i prezzi medi in tutto il comune per appartamenti in vendita sono
in forte aumento (+24,02%).
NOVITÀ Il risultato che vedi dipende dai dati che siamo riusciti ad estrarre dall'annuncio: ottieni una stima più accuranta di questo immobile, inserendo dati più precisi.
N.B. L'Opinione di Caasa® è un servizio sperimentale realizzato tramite tecniche di Intelligenza Artificiale, fornito senza alcuna garanzia di correttezza e completezza. Leggi il disclaimer o segnalaci un problema.
IMMAGINI
IN SINTESI
DESCRIZIONE
di recente ristrutturazione con terrazza con garage con balcone con cantina di recente ristrutturazione da ristrutturare
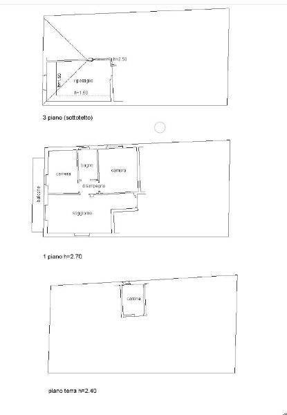
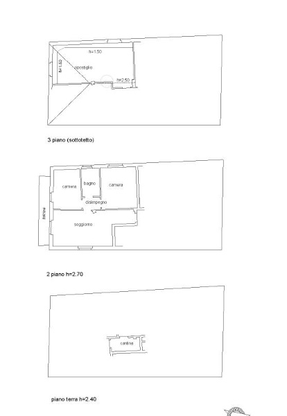
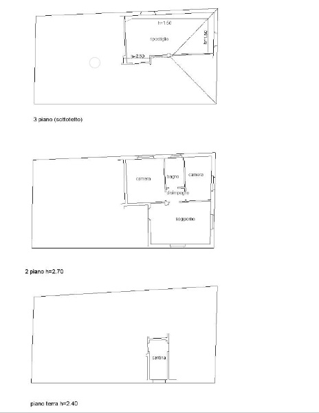
In palazzina quadrifamilare del 2004, in pieno centro di Calcinate, proponiamo in vendita 3 appartamenti trilocali già a reddito, con canone annuo di CIRCA euro 6000 ciascuno, per una resa totale di 18.600 euro annui. I tre appartamenti sono posti uno al piano primo e due al piano secondo. Sono composti da zona giorno con cucina a vista, 2 camere da letto, bagno, cantina al piano terra, autorimessa di 20 mq sempre al piano terra, ripostiglio sottotetto esclusivo piastrellato e ordinato di circa 30 mq per ciascun appartamento. 2 immobili hanno il balcone a servizio della zona giorno e di una camera da letto. La richiesta per ciascun immobile è di Eu. 95.000; per l'acquisto IN BLOCCO la richiesta è TRATTABILE. Fantastico affare ad alta resa per investitori. Colleoni Studio Immobiliare offre una seria e QUALIFICATA ASSISTENZA PROFESSIONALE per compravendite e locazioni di beni immobili residenziali e commerciali e per la gestione delle operazioni immobiliari, garantendoVi una consulenza trasparente e completa. Siamo una REALTA' DINAMICA che opera da 20 anni sul territorio della bassa bergamasca compreso tra Bergamo e Treviglio; trattiamo in particolar modo immobili siti nei Comuni serviti dalla linea ferroviaria e dalle autostrade A4 e BreBeMi. Lavoriamo per tradurre in CONCRETEZZA le vostre richieste; proponiamo solo immobili che soddisfino le Vostre esigenze ed aspettative, aiutando nella ricerca della Vostra CASA IDEALE con rispettosa gestione del Vostro e del nostro tempo. Un ARCHITETTO è a Vostra disposizione per una CONSULENZA TECNICA, per progettare la ristrutturazione, il riuso, il restauro della Vostra casa o suggerire il migliore utilizzo degli spazi a disposizione con sensibilità e professionalità. Offriamo SERVIZI di intermediazione immobiliare, consulenza immobiliare, valutazioni gratuite, promozione vendite, ricerche di mercato, assistenza contrattuale e visure catastali. Siamo associati Fimaa. Classe Energetica: Non indicata

