Valutazione immobiliare indipendente, accurata e gratuita
Appartamento in vendita a Brembate a 34.542 € (cod.65271cef)
Caasa non ha sufficienti informazioni per commentare l'appartamento in vendita a Brembate - 65271cef.
Analisi immobiliare
I dati in posseso di Caasa per quest'immobile sono insufficienti, inaffidabili o contraddittori per proporre un'analisi attendibile.
Mercato immobiliare a Brembate
Per quanto riguarda più in generale il comune di Brembate, sono presenti al momento più di cento annunci per
appartamenti in vendita (meno dell'1% dell'intera provincia)
e il maggior numero di annunci per questa tipologia sono relativi alla zona di Grignano.
La dinamica dei prezzi in tutto il comune mostra che negli ultimi 6 mesi, i prezzi per appartamenti in vendita sono
in leggera diminuzione (-2,88%).
NOVITÀ Il risultato che vedi dipende dai dati che siamo riusciti ad estrarre dall'annuncio: ottieni una stima più accuranta di questo immobile, inserendo dati più precisi.
N.B. L'Opinione di Caasa® è un servizio sperimentale realizzato tramite tecniche di Intelligenza Artificiale, fornito senza alcuna garanzia di correttezza e completezza. Leggi il disclaimer o segnalaci un problema.
IMMAGINI
IN SINTESI
PROPOSTO DA:
Accordo Casa Srl
DESCRIZIONE
con cantina con posto auto con garage in asta giudiziaria con cortile
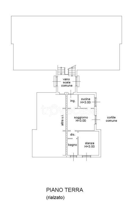
Proponiamo in vendita all'asta appartamento al piano rialzato composto di ingresso, soggiorno, cucina, disimpegno, bagno e una camera e cantina al piano seminterrato e autorimessa al piano terra facente parte di un fabbricato accessorio dotata di acc […]
