Valutazione immobiliare indipendente, accurata e gratuita
Casa indipendente in vendita a Boltiere a 395.000 € (cod.65369004)
Caasa non ha sufficienti informazioni per commentare la casa indipendente in vendita a Boltiere - 65369004.
Analisi immobiliare
I dati in posseso di Caasa per quest'immobile sono insufficienti, inaffidabili o contraddittori per proporre un'analisi attendibile.
Mercato immobiliare a Boltiere
Per quanto riguarda più in generale il comune di Boltiere, sono presenti al momento circa cento annunci per
case indipendenti in vendita (meno dell'1% dell'intera provincia) .
Per quanto riguarda la dinamica dei prezzi, negli ultimi 6 mesi i prezzi medi in tutto il comune per case indipendenti in vendita sono
in sostanziale aumento (+6,82%).
NOVITÀ Il risultato che vedi dipende dai dati che siamo riusciti ad estrarre dall'annuncio: ottieni una stima più accuranta di questo immobile, inserendo dati più precisi.
N.B. L'Opinione di Caasa® è un servizio sperimentale realizzato tramite tecniche di Intelligenza Artificiale, fornito senza alcuna garanzia di correttezza e completezza. Leggi il disclaimer o segnalaci un problema.
IMMAGINI
IN SINTESI
PROPOSTO DA:
Roberto Mancini Servizi Immobiliari S.R.L.
DESCRIZIONE
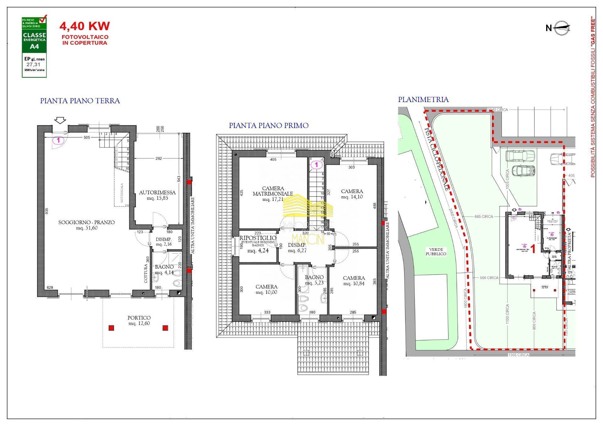
di nuova costruzione con giardino con termocondizionamento con cantina di nuova costruzione di recente ristrutturazione con riscaldamento autonomo
A BOLTIERE, in NUOVA ZONA RESIDENZIALE di prestigio, Immobiliare Mancini propone NUOVA COSTRUZIONE - BELLISSIMA VILLA SU DUE LIVELLI CON GIARDINO ESCLUSIVO + BOX SINGOLO FUORI TERRA. - IMMAGINI CAMPIONE INDICATIVE - L'immobile, di NUOVA COSTRUZIONE 2025, si trover in contesto residenziale di sole ville. In FASE DI COSTRUZIONE e IN PRONTA CONSEGNA A DICEMBRE 2026! La villa, in , composta da ingresso in ampio e luminoso soggiorno e ampia cucina A VISTA con sbarco su PORTICO di 12 mq e GIARDINO ESCLUSIVO di 417 mq circa che circonda l'immobile su tre lati, disimpegno e bagno. Tramite scala si accede al PIANO PRIMO dove troviamo CAMERA MATRIMONIALE, tre camere da letto, bagno e ripostiglio adibito ad eventuale lavanderia. A completare la propriet, BOX SINGOLO di 18 mq fuori terra con accesso diretto all'immobile. Accatastamenti ed allacciamenti fuori dal prezzo di vendita, per un importo di ? 5.000,00. Questa unit abitativa sar COMPLETAMENTE INDIPENDENTE e CON ALTA POSSIBILITA' DI PERSONALIZZAZIONE. Accessoriata di impianto fotovoltaico ampliabile, pompa di calore gi fornita con predisposizione climatizzazione estiva, riscaldamento a pavimento, predisposizione sistema di allarme. Possibilit soluzione interamente elettrica e dotata di impianto fotovoltaico e di installare un accumulatore di corrente con il quale possibile abbattere ulteriormente i costi di gestione. Capitolato dettagliato, con relativi riferimenti tecnici e finiture di qualit garantita e possibilit di accesso a detrazioni fiscali e mutui tassi agevolati tipo Green. L'unit immobiliare sorger vicino le scuole, fermata del bus e AUTOSTRADA A4. E' un ottima soluzione, perfetta sia per una coppia che desidera ampi spazi sia per una famiglia che cerca una soluzione adatta alle proprie esigenze! SE SIETE INTERESSATI NON ESITATE A CONTATTARE IMMOBILIARE MANCINI AI NUMERI 0262068566 O 3311211947, OPPURE LASCIATE UN MESSAGGIO ALLA MAIL ag.immobiliaremancini@gmail.com E VERRETE RICONTATTATI. CI TROVATE IN VIA MAZZINI N. 70, TREZZO SULL'ADDA , CENTRO POLI[…]


