Valutazione immobiliare indipendente, accurata e gratuita
Terreno edificabile in vendita a Barzana a 430.000 € (cod.658710e2)
Caasa non ha sufficienti informazioni per commentare il terreno edificabile in vendita a Barzana - 658710e2.
Analisi immobiliare
I dati in posseso di Caasa per quest'immobile sono insufficienti, inaffidabili o contraddittori per proporre un'analisi attendibile.
Mercato immobiliare a Barzana
Per quanto riguarda più in generale il comune di Barzana, sono presenti al momento meno di dieci annunci per
terreni edificabili in vendita (meno dell'1% dell'intera provincia) .
Vedi altre informazioni direttamente su
Mercato-Immobiliare.info
NOVITÀ Il risultato che vedi dipende dai dati che siamo riusciti ad estrarre dall'annuncio: ottieni una stima più accuranta di questo immobile, inserendo dati più precisi.
N.B. L'Opinione di Caasa® è un servizio sperimentale realizzato tramite tecniche di Intelligenza Artificiale, fornito senza alcuna garanzia di correttezza e completezza. Leggi il disclaimer o segnalaci un problema.
IMMAGINI
IN SINTESI
PROPOSTO DA:
RE/MAX Consulenti Associati
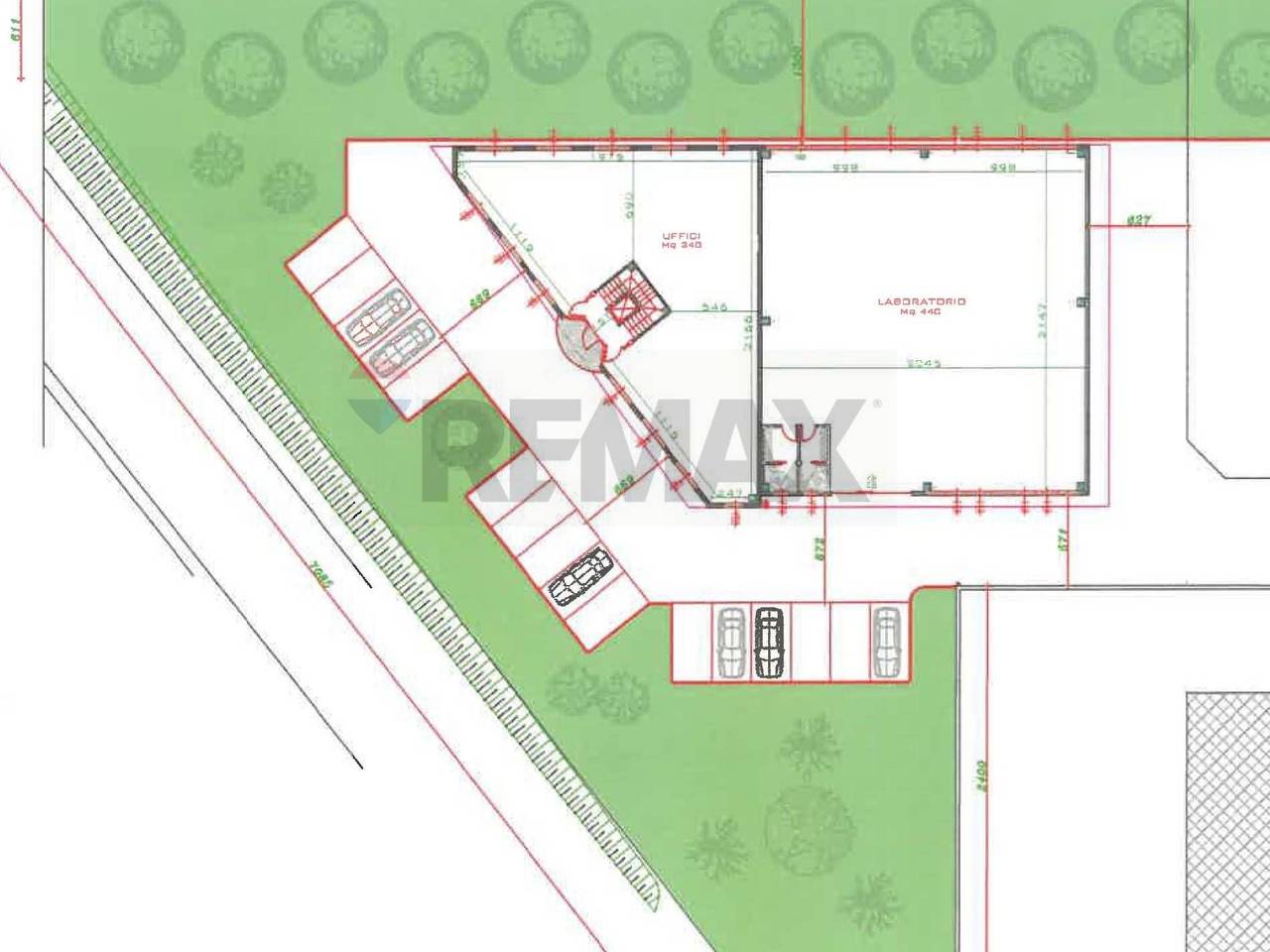
DESCRIZIONE
La sua posizione, facilmente visibile e raggiungibile tramite le principali vie di comunicazione, lo rende ideale per la realizzazione di un'ampia gamma di attività produttive e commerciali, quali ad esempio magazzini, stabilimenti produttivi o unità locali centri di logistica o vista la posizione fronte provinciale di forte passaggio vetrine espositive e zona produzione alle spalle. Inoltre, grazie ai suoi 1260 metri quadrati di superficie lorda pavimento di possibile realizzazione, è possibile costruire un'area di uffici o di servizi per supportare le attività industriali che vi verranno insediate. Il terreno è dotato di tutti i servizi necessari per una corretta gestione delle attività produttive, come ad esempio l'accesso all'energia elettrica, all'acqua potabile e alla rete fognaria. Inoltre, la sua ampia superficie permette di realizzare ampi spazi di parcheggio per i dipendenti e i visitatori. L'ambiente circostante è caratterizzato da una forte presenza di altre attività industriali e commerciali fronte provinciale il che rende questo terreno ancora più interessante per investimenti di questo tipo. Infatti, la zona è già ben sviluppata anche a livello commerciale e offre una serie di servizi utili per le attività produttive. In sintesi, questo terreno produttivo in vendita a Barzana è una soluzione ideale per chi cerca una location strategica e ben servita per lo sviluppo di attività produttive. La sua ampia superficie, la posizione pianeggiante e la possibilità di realizzare uffici o servizi lo rendono un'opportunità imperdibile per gli imprenditori e gli investitori che vogliono espandere il proprio business. SUPERFICIE LOTTO 3490 MQ SUPERFICIE LORDA PAVIMENTO 1200 MQ SUPERFICIE COPERTA 793 MQ H MAX 10.50 ML

