Valutazione immobiliare indipendente, accurata e gratuita
Appartamento in vendita ad Antegnate a 92.250 € (cod.65040bf3)
Caasa non ha sufficienti informazioni per commentare l'appartamento in vendita ad Antegnate - 65040bf3.
Analisi immobiliare
I dati in posseso di Caasa per quest'immobile sono insufficienti, inaffidabili o contraddittori per proporre un'analisi attendibile.
Mercato immobiliare ad Antegnate
Per quanto riguarda più in generale il comune di Antegnate, sono presenti al momento più di cinquanta annunci per
appartamenti in vendita (meno dell'1% dell'intera provincia) .
La dinamica dei prezzi in tutto il comune mostra che negli ultimi 6 mesi, i prezzi per appartamenti in vendita sono
sostanzialmente stabili (-0,34%).
NOVITÀ Il risultato che vedi dipende dai dati che siamo riusciti ad estrarre dall'annuncio: ottieni una stima più accuranta di questo immobile, inserendo dati più precisi.
N.B. L'Opinione di Caasa® è un servizio sperimentale realizzato tramite tecniche di Intelligenza Artificiale, fornito senza alcuna garanzia di correttezza e completezza. Leggi il disclaimer o segnalaci un problema.
IMMAGINI
IN SINTESI
DESCRIZIONE
di recente costruzione in asta giudiziaria con balcone con terrazza con cortile con angolo cottura di recente ristrutturazione di recente costruzione
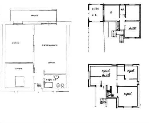
L'intero lotto è composto da diversi subalterni: il fabbricato residenziale, spazi coperti destinati a deposito, un'area urbana (area esterna all'ingresso), altra area urbana. L'abitazione si sviluppa al piano primo previo accesso dal piano terra con scala di proprietà. L'unità residenziale in oggetto è costituita da una zona ingresso che si apre sull'ampio soggiorno ove è localizzato anche l'angolo cottura, un disimpegno che conduce alle due camere e al bagno; dalle due camere e dal bagno è possibile accedere al balcone posto sul lato nord mentre dal soggiorno e dall'angolo cottura si può accedere all'altro balcone posto a sud che si affaccia sull'area comune (cortile). ASTE IMMOBILIARI: Per informazioni e visite immobiliari contattare il numero 030/6363111. L'immobile viene venduto dal tribunale tramite asta giudiziaria e il prezzo indicato si riferisce all’offerta minima. Inoltre, per chi acquista come prima casa, sono previste ulteriori e vantaggiose agevolazioni. NEOVIT srl consulting è una società di consulenza che accompagna il cliente in tutto il percorso relativo all'acquisto tramite asta giudiziaria, abilitata anche nel ritiro dei crediti immobiliari. Contattaci per avere tutte le informazioni necessarie, i nostri consulenti sono a tua disposizione per accompagnarti dalla ricerca dell' immobile fino alla consegna delle chiavi, compreso l'eventuale assistenza per l'ottenimento di un mutuo. Il nostro staff è formato da professionisti del settore con competenze diverse, in grado di fornire una consulenza e assistenza a 360 gradi sia da un punto di vista tecnico-immobiliare legale. Il progetto NPL nasce nel nostro studio nel 2022 con l'intento ed al fine di massimizzare il recupero del credito deteriorato attraverso le chiusure stragiudiziali dei contenziosi o incentivando la partecipazione alle aste. L’acquisto di crediti NPL permette di: -di acquistare crediti con garanzia ipotecaria a un prezzo vantaggioso (anche al 50% in meno sull’importo di mercato) -riqualificare gli immobili acquistati con a[…]

