Valutazione immobiliare indipendente, accurata e gratuita
Casa indipendente ad Almenno San Bartolomeo in zona Albenza (cod.651b6aea)
Caasa non ha sufficienti informazioni per commentare la casa indipendente ad Almenno San Bartolomeo Albenza - 651b6aea.
Analisi immobiliare
I dati in posseso di Caasa per quest'immobile sono insufficienti, inaffidabili o contraddittori per proporre un'analisi attendibile.
Mercato immobiliare ad Almenno San Bartolomeo
Per quanto riguarda più in generale il comune di Almenno San Bartolomeo, sono presenti al momento circa cento annunci per
case indipendenti in vendita (meno dell'1% dell'intera provincia)
e il maggior numero di annunci per questa tipologia sono relativi proprio alla zona di Albenza.
Per quanto riguarda la richiesta media in zona Albenza, dove sorge la casa indipendente, essa è pari a circa
1.910 €/m² per case indipendenti in vendita.
Possiamo inoltre considerare che in tutto il comune negli ultimi 6 mesi, i prezzi per case indipendenti in vendita sono
in forte aumento (+38,23%).
NOVITÀ Il risultato che vedi dipende dai dati che siamo riusciti ad estrarre dall'annuncio: ottieni una stima più accuranta di questo immobile, inserendo dati più precisi.
N.B. L'Opinione di Caasa® è un servizio sperimentale realizzato tramite tecniche di Intelligenza Artificiale, fornito senza alcuna garanzia di correttezza e completezza. Leggi il disclaimer o segnalaci un problema.
IMMAGINI
IN SINTESI
PROPOSTO DA:
Case all'Asta
DESCRIZIONE
di recente costruzione con posto auto con terrazza con cantina con balcone di recente costruzione in asta giudiziaria
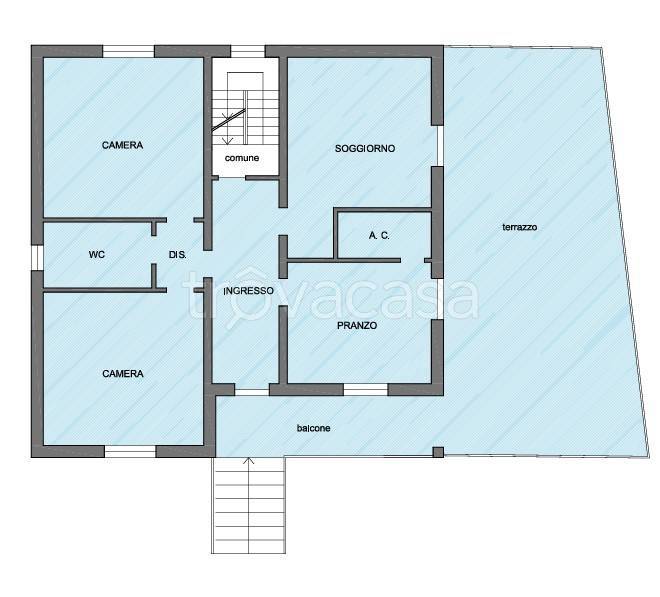
Casa singola su quattro livelli con cantina e box Composto al piano terra da balcone, terrazzo, ingresso, soggiorno, cucina, disimpegno, due camere e bagno; al piano primo da ingresso, balcone, soggiorno, cucina, disimpegno, due camere e bagno; al pi […]
