Valutazione immobiliare indipendente, accurata e gratuita

L'Opinione di Caasa® per la casa indipendente in vendita ad Almè a 550.000 € (cod.63701c74)

Secondo Caasa, per la casa indipendente in vendita ad Almè, la richiesta di 550.000 € è significativamente svantaggiosa rispetto agli annunci simili.

Analisi immobiliare
La casa indipendente, situata nella zona OMI B1, è proposta in vendita (da EsseVi Immobili BG) a 550.000 € per una superficie commerciale di 140 m² e quindi ad un prezzo per metro quadrato pari a 3928 €/m² .
Questo valore è significativamente più alto di quello stimato da Caasa per immobili in vendita simili per tipologia, caratteristiche, classe energetica e zona, che è compreso tra 3.012 €/m² e 3.345 €/m². Considerata la posizione della casa indipendente si sono utilizzati in raffronto i valori medi nelle zone limitrofe . Ad affinare la stima ha contribuito anche la classe energetica (A+) oltre alla conoscenza dello stato dell'immobile (di nuova costruzione) e di alcune caratteristiche significative come il garage. In virtù di queste considerazioni è possibile ottenere un intervallo di valori accettabili per l'offerta relativamente limitato.

Mercato immobiliare ad Almè
Per quanto riguarda più in generale il comune di Almè, sono presenti al momento più di trenta annunci per case indipendenti in vendita (meno dell'1% dell'intera provincia) .

Per quanto riguarda la dinamica dei prezzi, negli ultimi 6 mesi i prezzi medi in tutto il comune per case indipendenti in vendita sono in leggero aumento (+3,13%).

NOVITÀ Il risultato che vedi dipende dai dati che siamo riusciti ad estrarre dall'annuncio: ottieni una stima più accuranta di questo immobile, inserendo dati più precisi.

N.B. L'Opinione di Caasa® è un servizio sperimentale realizzato tramite tecniche di Intelligenza Artificiale, fornito senza alcuna garanzia di correttezza e completezza. Leggi il disclaimer o segnalaci un problema.

IMMAGINI

IN SINTESI

Prezzo:
550.000 €
Superficie:
140 m²
Prezzo al m²:
3928 €/m²
Piano:
n.d.
Bagni:
1
Classe energetica:
A+
Città:
Almè (BG)
Zona OMI:
B1 (CENTRO URBANO)
Indirizzo:
Pubblicato:
ven 26 aprile 2024

PROPOSTO DA:

logo EsseVi Immobili BG

EsseVi Immobili BG

Via Piazzalunga, 64, San Giovanni Bianco (BG)

Verificata da Caasa®

Vai ai contatti

DESCRIZIONE

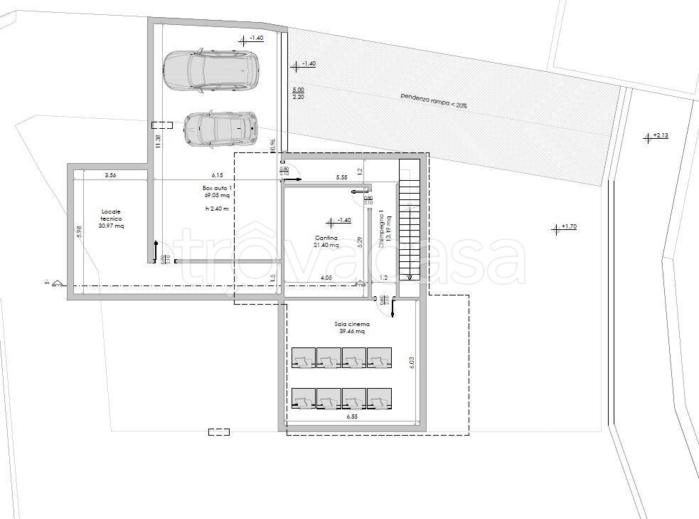
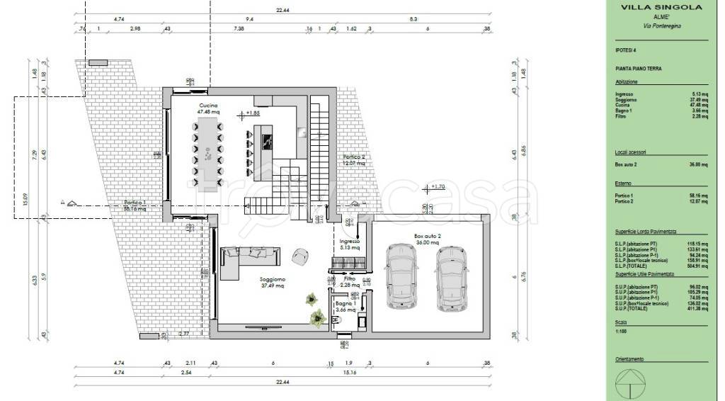
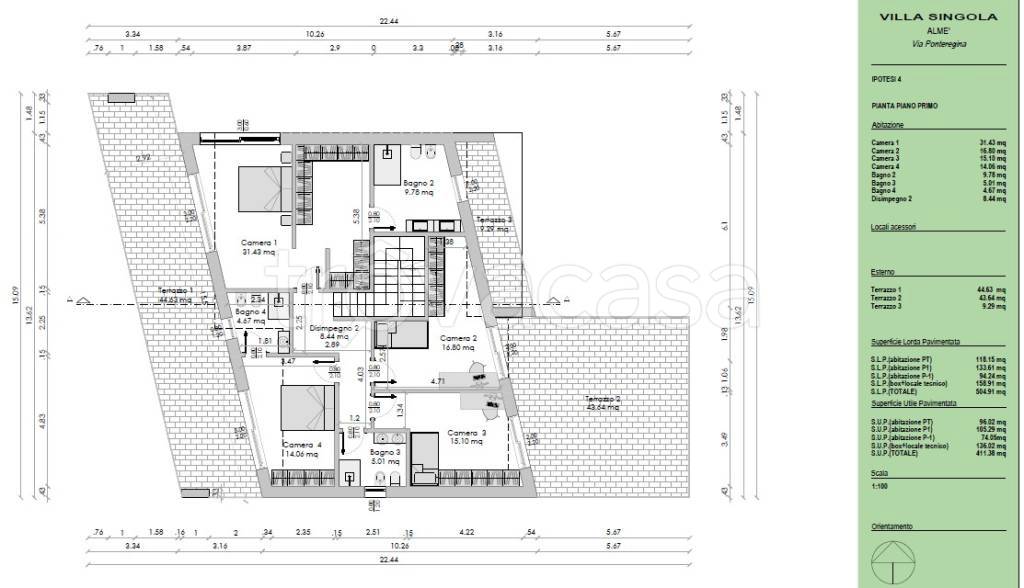
di nuova costruzione con posto auto con terrazza con giardino con garage di nuova costruzione

EsseVi Immobili propone in vendita VILLA di nuova costruzione in zona Almè (Bg), con due unità abitative indipendenti e vista mozzafiato, massima riservatezza, a solo 15 minuti dal centro di Bergamo. DESCRIZIONE: Piano Terra: prevede cucina separata, ampio soggiorno e bagno. Primo Piano: troviamo tre camere da letto ed un bagno. Seminterrato: box doppio, bagno, locale pluriuso. Il punto di forza di questo immobile si trova nel suo giardino di ampie metrature. Possiamo con voi personalizzare a vostro piacimento la distribuzione dei locali in fase di progettazione. La facciamo come vuoi tu, chiama senza impegno. Occasione da non perdere! Le immagini degli arredi sono solo a scopo illustrativo e non costituiscono elemento contrattuale. Contattaci ora per un appuntamento e scopri dal vivo questo gioiello immobiliare. La nostra organizzazione è nata dopo tre anni di ricerche e dopo il reperimento di capitali. Il tempo speso nella fase di preparazione ci ha permesso di iniziare con programmi chiari e ben definiti per: noi, i soci, i collaboratori e gli agenti. Abbiamo creato un’azienda che si proietta nel futuro come l’impresa di famiglia, una struttura solida che si pone sul mercato con una nuova leadership, un’ azienda che vede il cliente in modo più razionale ed amico e non punta sul facile guadagno. Ecco perché la nostra struttura è dotata di corsi di comunicazione e sviluppo a vantaggio di soci ed agenti, di corsi per segretarie, di un architetto pronto per dare consigli, di un fiscalista in grado di chiarire ogni dubbio. Ecco perché siamo in grado di chiarire ogni dubbio. Ecco perché siamo in grado di procurare il finanziamento necessario al nostro cliente, studiamo la formula su misura per Lui. La scelta organizzativa e strutturale è stata fatta ponendoci nei “panni” del cliente. Ci siamo cioè chiesti: ”Se fossi il cliente di questa agenzia come vorrei essere trattato?” Per maggiori informazioni contattaci! EsseVi Immobili Telefono: 035 636327 Viale Italia 37 Almè (BG

  • immobiliare.it
  • trovacasa.net
  • idealista.it