Valutazione immobiliare indipendente, accurata e gratuita
Appartamento in vendita ad Albano Sant'Alessandro a 48.750 € (cod.658e86c6)
Caasa non ha sufficienti informazioni per commentare l'appartamento in vendita ad Albano Sant'Alessandro - 658e86c6.
Analisi immobiliare
I dati in posseso di Caasa per quest'immobile sono insufficienti, inaffidabili o contraddittori per proporre un'analisi attendibile.
Mercato immobiliare ad Albano Sant'Alessandro
Per quanto riguarda più in generale il comune di Albano Sant'Alessandro, sono presenti al momento circa cento annunci per
appartamenti in vendita (meno dell'1% dell'intera provincia) .
Possiamo inoltre considerare che in tutto il comune negli ultimi 6 mesi, i prezzi per appartamenti in vendita sono
in sostanziale aumento (+5,69%).
NOVITÀ Il risultato che vedi dipende dai dati che siamo riusciti ad estrarre dall'annuncio: ottieni una stima più accuranta di questo immobile, inserendo dati più precisi.
N.B. L'Opinione di Caasa® è un servizio sperimentale realizzato tramite tecniche di Intelligenza Artificiale, fornito senza alcuna garanzia di correttezza e completezza. Leggi il disclaimer o segnalaci un problema.
IMMAGINI
IN SINTESI
PROPOSTO DA:
LETICE
DESCRIZIONE
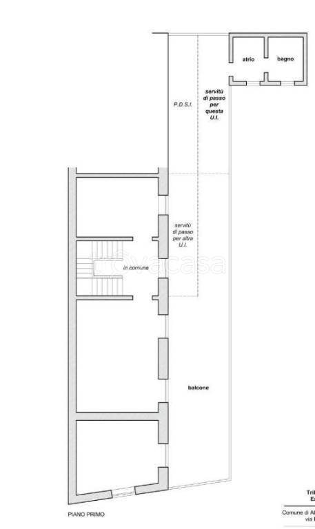
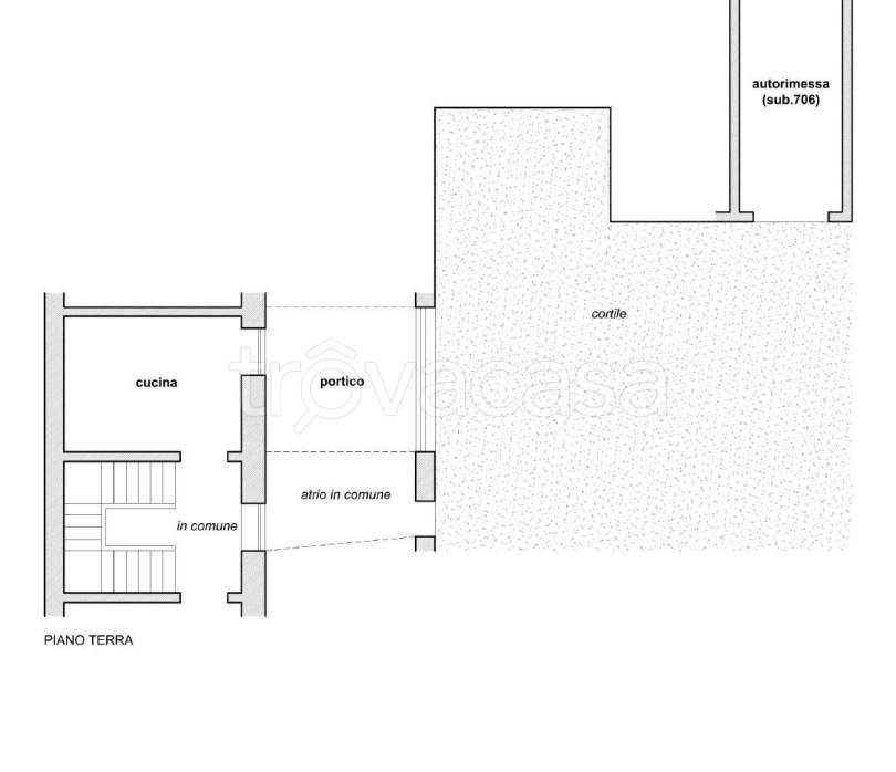
da ristrutturare con posto auto con giardino con cantina con terrazza con garage in asta giudiziaria con cortile
Albano Sant'Alessandro – Via Papa Giovanni XXIII n. 42 ? Proponiamo in asta immobile costituito da più vani separati, situato nel Comune di Albano Sant'Alessandro, con corpo principale su due piani e locali esterni accessori. ? Caratteristiche principali: Tipologia: Edificio residenziale da ristrutturare Piani: Terra, primo e sottotetto Stato: Libero, in pessime condizioni generali Autorimessa: Singola con accesso dal cortile comune Orto: Di proprietà Composizione dell’immobile: • Piano Terra: unico locale ad uso cucina con portico antistante • Primo Piano: tre vani non comunicanti, accesso da scala interna e terrazza • Corpo esterno: locale servizi igienici, soffitta e cantina • Cortile comune in ghiaia ? Soluzione adatta a chi cerca un intervento di ristrutturazione totale per creare un immobile personalizzato, con ampi spazi esterni e possibilità di sfruttare il corpo esterno e l’orto. Valore di Mercato: € 97.000,00 ?? Scrivi “SI” per ricevere maggiori informazioni

