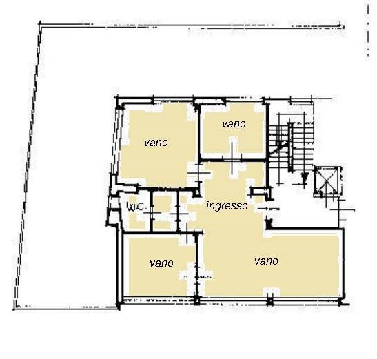
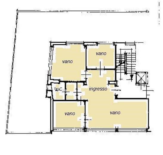
Valore quadrivani in vendita in zona Centro Città
In base al numero di annunci dei quadrivani in vendita attualmente presenti, la zona Centro Città è una tra le più importanti a Livorno. In media, nella zona, il prezzo richiesto è attualmente pari a 1.855 €/m² ed è nella maggioranza dei casi compreso tra 1.470 €/m² e 2.290 €/m². Questo valore è circa il 15% inferiore alla media cittadina e ne fa una zona tra le più economiche in assoluto per questa tipologia. LEGGI ANCORA
In base ai dati ufficiali sulle compravendite dell' Agenzia delle Entrate riferiti alla zona OMI B1 (P.ZZA DEL MUNICIPIO - P.ZZA DELLA REPUBBLICA - P.ZZA CAVOUR), che è quella più vicina alla zona Centro Città, i prezzi al m² per quadrivano in vendita sono compresi tra 1.620 €/m² e 1.850 €/m².
N.B. Tutti le informazioni immobiliari sono fornite senza alcuna garanzia. Leggi il disclaimer.















