Valutazione immobiliare indipendente, accurata e gratuita
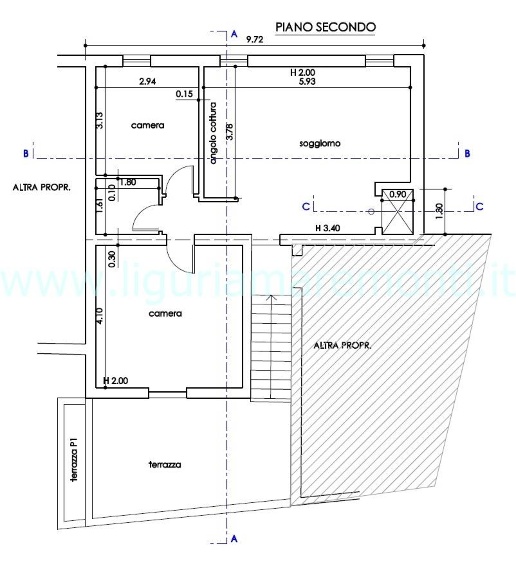
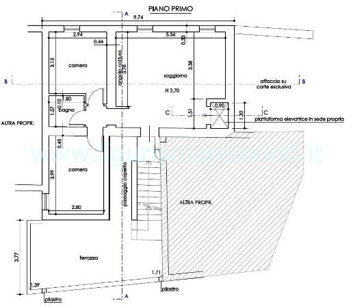
Casa indipendente in vendita a Vado Ligure in zona Valle di Vado a 100.000 € (cod.654b813e)
Caasa non ha sufficienti informazioni per commentare la casa indipendente a Vado Ligure Valle di Vado - 654b813e.
Analisi immobiliare
I dati in posseso di Caasa per quest'immobile sono insufficienti, inaffidabili o contraddittori per proporre un'analisi attendibile.
Mercato immobiliare a Vado Ligure
Per quanto riguarda più in generale il comune di Vado Ligure, sono presenti al momento più di cinquanta annunci per
case indipendenti in vendita (meno dell'1% dell'intera provincia)
e il maggior numero di annunci per questa tipologia sono relativi proprio alla zona di Valle di Vado.
Per quanto riguarda la richiesta media in zona Valle di Vado, dove sorge la casa indipendente, essa è pari a circa
1.830 €/m² per case indipendenti in vendita.
Possiamo inoltre considerare che in tutto il comune negli ultimi 6 mesi, i prezzi per case indipendenti in vendita sono
in aumento (+3,71%).
NOVITÀ Il risultato che vedi dipende dai dati che siamo riusciti ad estrarre dall'annuncio: ottieni una stima più accuranta di questo immobile, inserendo dati più precisi.
N.B. L'Opinione di Caasa® è un servizio sperimentale realizzato tramite tecniche di Intelligenza Artificiale, fornito senza alcuna garanzia di correttezza e completezza. Leggi il disclaimer o segnalaci un problema.
IMMAGINI
IN SINTESI
PROPOSTO DA:
AGENZIA IMMOBILIARE MARE MONTI DI ROVERE MASSIMO
