Valutazione immobiliare indipendente, accurata e gratuita
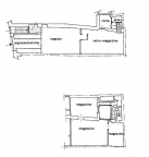
Locale commerciale in affitto a Savona in zona Centro Storico a 1.900 € mese (cod.657ba2e9)
Caasa non ha sufficienti informazioni per commentare il locale commerciale a Savona in zona Centro Storico - 657ba2e9.
Analisi immobiliare
I dati in posseso di Caasa per quest'immobile sono insufficienti, inaffidabili o contraddittori per proporre un'analisi attendibile.
Mercato immobiliare a Savona
Per quanto riguarda più in generale la città di Savona, sono presenti al momento più di venti annunci per
locali commerciali in affitto (meno di un terzo dell'intera provincia)
e il maggior numero di annunci per questa tipologia sono relativi proprio alla zona di Centro Storico.
Per quanto riguarda la richiesta media in zona Centro Storico, dove sorge il locale commerciale, essa è pari a circa
14,2 €/m² mese per locali commerciali in affitto.
NOVITÀ Il risultato che vedi dipende dai dati che siamo riusciti ad estrarre dall'annuncio: ottieni una stima più accuranta di questo immobile, inserendo dati più precisi.
N.B. L'Opinione di Caasa® è un servizio sperimentale realizzato tramite tecniche di Intelligenza Artificiale, fornito senza alcuna garanzia di correttezza e completezza. Leggi il disclaimer o segnalaci un problema.
IMMAGINI
IN SINTESI
PROPOSTO DA:
I.C.I. Immobiliare
