Valutazione immobiliare indipendente, accurata e gratuita
Appartamento in vendita a Loano a 129.000 € (cod.64ec1f4d)
Caasa non ha sufficienti informazioni per commentare l'appartamento in vendita a Loano - 64ec1f4d.
Analisi immobiliare
I dati in posseso di Caasa per quest'immobile sono insufficienti, inaffidabili o contraddittori per proporre un'analisi attendibile.
Mercato immobiliare a Loano
Per quanto riguarda più in generale il comune di Loano, sono presenti al momento ben circa mille annunci per
appartamenti in vendita (meno del 10% dell'intera provincia) .
Relativamente alla dinamica dei prezzi, possiamo dire che negli ultimi 6 mesi i prezzi medi in tutto il comune per appartamenti in vendita sono
in debole aumento (+1,55%).
NOVITÀ Il risultato che vedi dipende dai dati che siamo riusciti ad estrarre dall'annuncio: ottieni una stima più accuranta di questo immobile, inserendo dati più precisi.
N.B. L'Opinione di Caasa® è un servizio sperimentale realizzato tramite tecniche di Intelligenza Artificiale, fornito senza alcuna garanzia di correttezza e completezza. Leggi il disclaimer o segnalaci un problema.
IMMAGINI
IN SINTESI
PROPOSTO DA:
Astexte Genova
DESCRIZIONE
con angolo cottura con giardino in asta giudiziaria
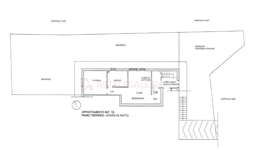
Appartamento in villa posto al piano terreno, distinto con il numero interno 1B, composto da piccolo locale di ingresso – corridoio, soggiorno con angolo cottura, disimpegno, una camera e bagno, per una superficie commerciale di circa mq 56, con circostante ampio giardino di pertinenza esclusiva. Gli ambienti sono sufficientemente ampi, ben distribuiti e affacciano sul circostante giardino attraverso ampie aperture finestrate. L’ingresso all’appartamento è chiuso da un portoncino ad anta singola del tipo blindato. L'immobile viene venduto dal tribunale tramite asta giudiziaria e il prezzo indicato si riferisce all'offerta minima. Per chi acquista come prima casa, sono previste agevolazioni. Cerchi casa all'Asta ? Ti sei già informato ? Pensi che il mutuo al 100% sia solo una pubblicità ? Astexte, la soluzione! Cosa aspetti ? HAI UNA CASA PIGNORATA ? POSSIAMO AIUTARTI ! CHIAMACI ALLO 0109841034

