Valutazione immobiliare indipendente, accurata e gratuita
Casa indipendente in vendita a Laigueglia a 1.500.000 € (cod.6574d6a0)
Caasa non ha sufficienti informazioni per commentare la casa indipendente in vendita a Laigueglia - 6574d6a0.
Analisi immobiliare
I dati in posseso di Caasa per quest'immobile sono insufficienti, inaffidabili o contraddittori per proporre un'analisi attendibile.
Mercato immobiliare a Laigueglia
Per quanto riguarda più in generale il comune di Laigueglia, sono presenti al momento più di cento annunci per
case indipendenti in vendita (meno del 5% dell'intera provincia) .
Per quanto riguarda la dinamica dei prezzi, negli ultimi 6 mesi i prezzi medi in tutto il comune per case indipendenti in vendita sono
in aumento (+4,80%).
NOVITÀ Il risultato che vedi dipende dai dati che siamo riusciti ad estrarre dall'annuncio: ottieni una stima più accuranta di questo immobile, inserendo dati più precisi.
N.B. L'Opinione di Caasa® è un servizio sperimentale realizzato tramite tecniche di Intelligenza Artificiale, fornito senza alcuna garanzia di correttezza e completezza. Leggi il disclaimer o segnalaci un problema.
IMMAGINI
IN SINTESI
PROPOSTO DA:
MONDO CASA DI TORAZZINI PAOLO & C S.A.S.
DESCRIZIONE
con terrazza con balcone con posto auto con angolo cottura con termocondizionamento
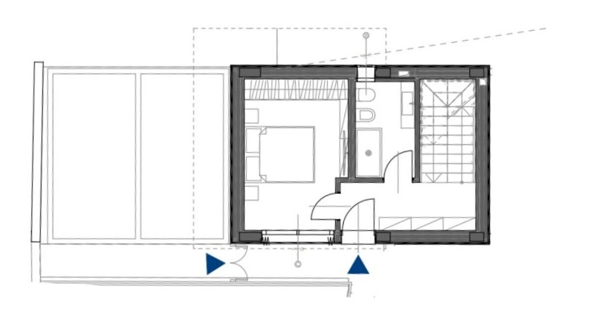
Mondo Casa propone in vendita, nel centro storico e a pochi passi dal mare, villa indipendente su tre livelli. Realizzata in struttura antisismica con lutilizzo dei più moderni standard costruttivi ed un alto livello di comfort abitativo. Impiantistica autonoma di raffrescamento e riscaldamento canalizzata, solare termico e fotovoltaico integrati, alto isolamento termico ed acustico elevano alla massima classe energetica. La tecnologia e la natura si fondono in un progetto che guarda il futuro senza dimenticare le radici. La villa è distribuita su tre piani, offrendo una maggiore superficie abitabile ed una chiara separazione tra la zona giorno e la zona notte. La presenza di due ingressi ne aumenta il comfort e lesclusività. Al piano terra troviamo ingresso su zona giorno con angolo cottura e bagno. La scala interna conduce al piano superiore dove abbiamo ampia camera matrimoniale e secondo bagno. Al terzo ed ultimo piano camera matrimoniale, cameretta e terzo bagno. Terrazzi e ampia corte esclusiva circondano la villa, regalando a chi la abita un angolo di relax immerso nella natura, a pochi passi dal mare. Completano la proprietà due comodi posti auto. Ottima soluzione per chi desidera indipendenza e tranquillità. Le Terrazze di Laigueglia rappresenta la nuova frontiera dellabitare consapevole, tecnologia e design al servizio del benessere. Per maggiori informazioni contattare Sara al 339.883.5942 presso Mondo Casa di Loano, Via Aurelia 289. - SC9490564



