Valutazione immobiliare indipendente, accurata e gratuita
Casa semindipendente in vendita a Finale Ligure a 200.000 € (cod.6581b4df)
Caasa non ha sufficienti informazioni per commentare la casa semindipendente in vendita a Finale Ligure - 6581b4df.
Analisi immobiliare
I dati in posseso di Caasa per quest'immobile sono insufficienti, inaffidabili o contraddittori per proporre un'analisi attendibile.
Mercato immobiliare a Finale Ligure
Per quanto riguarda più in generale il comune di Finale Ligure, sono presenti al momento più di 300 annunci per
case semindipendenti in vendita (meno del 5% dell'intera provincia)
e il maggior numero di annunci per questa tipologia sono relativi alla zona di Varigotti.
La dinamica dei prezzi in tutto il comune mostra che negli ultimi 6 mesi, i prezzi per case semindipendenti in vendita sono
in leggero aumento (+2,86%).
NOVITÀ Il risultato che vedi dipende dai dati che siamo riusciti ad estrarre dall'annuncio: ottieni una stima più accuranta di questo immobile, inserendo dati più precisi.
N.B. L'Opinione di Caasa® è un servizio sperimentale realizzato tramite tecniche di Intelligenza Artificiale, fornito senza alcuna garanzia di correttezza e completezza. Leggi il disclaimer o segnalaci un problema.
IMMAGINI
IN SINTESI
PROPOSTO DA:
RockAgent S.p.A.
Via G. Paisiello, 55, Roma (RM)
Verificata da Caasa®
DESCRIZIONE
di recente costruzione con terrazza con termocondizionamento con balcone di recente costruzione
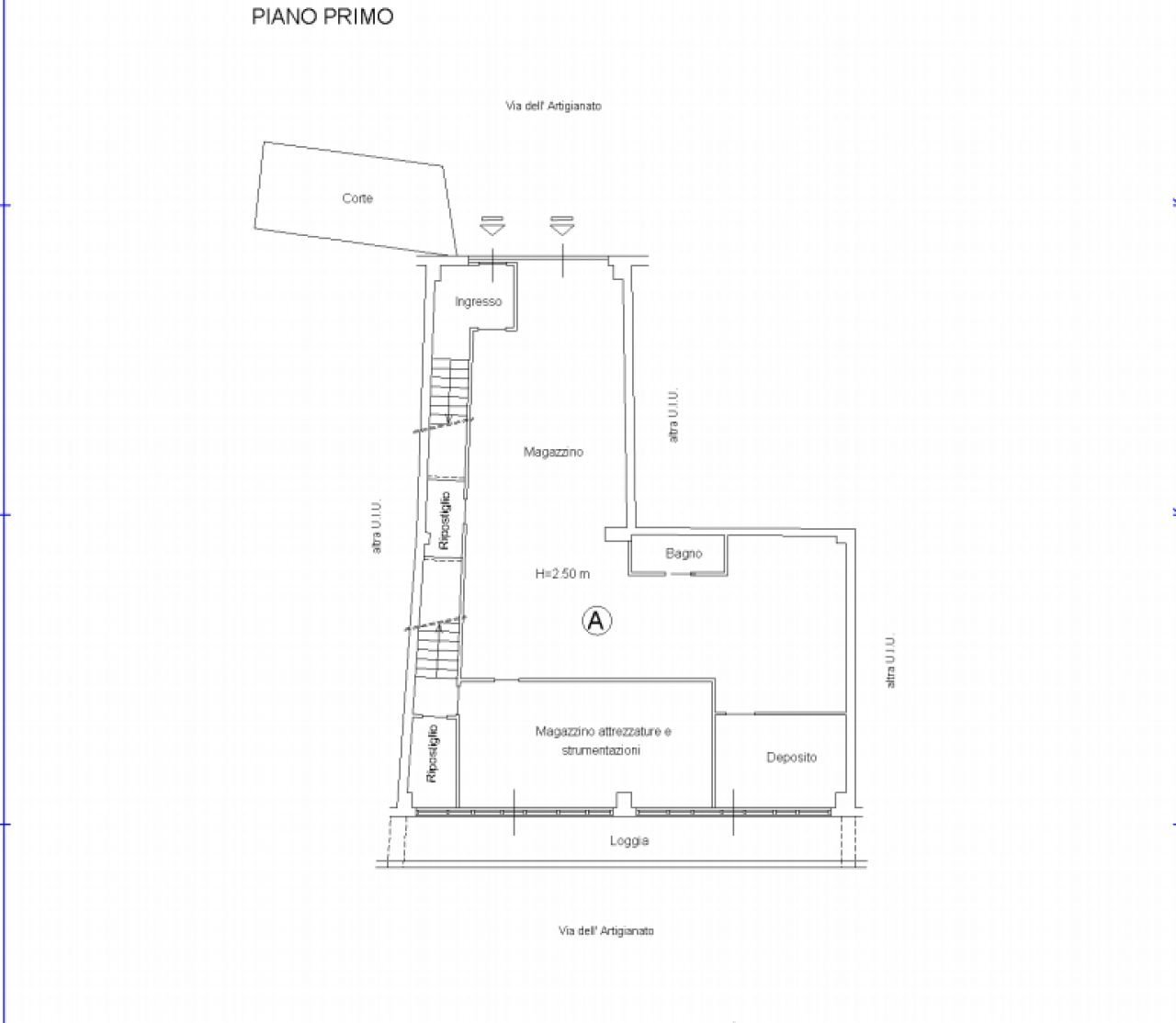
Situato in una posizione strategica a Finale Ligure, l'immobile si trova in Via dell'Artigianato, una zona ben collegata e facilmente accessibile. Questo contesto offre un ambiente tranquillo e funzionale, ideale per chi cerca uno spazio versatile e ben servito. La categoria catastale D/7 conferma la destinazione d'uso commerciale, rendendolo perfetto per attività che necessitano di ampi spazi. L'immobile si sviluppa su due piani, con una superficie commerciale di circa 390 metri quadrati. La disposizione interna è ben organizzata. Un balcone aggiunge un tocco di apertura e luminosità agli ambienti interni. Gli infissi esterni in doppio vetro e PVC assicurano un buon isolamento termico e acustico, contribuendo al benessere complessivo degli occupanti. L'immobile è in buono stato e viene venduto non arredato, offrendo la possibilità di personalizzare gli spazi secondo le proprie necessità. Il riscaldamento è autonomo, con un impianto ad aria alimentato da una pompa di calore, mentre il climatizzatore autonomo offre la funzione freddo/caldo, garantendo un ambiente confortevole in ogni stagione. L'edificio, che si sviluppa su un solo piano, non dispone di portineria, ma gode di due lati liberi paralleli che favoriscono una buona illuminazione naturale. Questo spazio rappresenta un'opportunità unica per chi cerca un immobile versatile e ben posizionato a Finale Ligure. Punti di forza dell'immobile: - luminoso - carrabile - ingresso indipendente La linea di autobus più vicina è VIA CALICE (150 m). Stai pensando di vendere o affittare il tuo locale commerciale? Con RockAgent puoi vendere o affittare il tuo immobile assicurandoti un servizio eccellente, garantito da agenti immobiliari selezionati supportati da un team tecnico, marketing e legale di altissimo livello. Visita il sito RockAgent.it e ottieni una valutazione gratuita del tuo immobile



