Valutazione immobiliare indipendente, accurata e gratuita
Appartamento in vendita a Carcare a 72.710 € (cod.6539a41d)
Caasa non ha sufficienti informazioni per commentare l'appartamento in vendita a Carcare - 6539a41d.
Analisi immobiliare
I dati in posseso di Caasa per quest'immobile sono insufficienti, inaffidabili o contraddittori per proporre un'analisi attendibile.
Mercato immobiliare a Carcare
Per quanto riguarda più in generale il comune di Carcare, sono presenti al momento più di 150 annunci per
appartamenti in vendita (meno del 5% dell'intera provincia) .
Relativamente alla dinamica dei prezzi, possiamo dire che negli ultimi 6 mesi i prezzi medi in tutto il comune per appartamenti in vendita sono
sostanzialmente stabili (-0,71%).
NOVITÀ Il risultato che vedi dipende dai dati che siamo riusciti ad estrarre dall'annuncio: ottieni una stima più accuranta di questo immobile, inserendo dati più precisi.
N.B. L'Opinione di Caasa® è un servizio sperimentale realizzato tramite tecniche di Intelligenza Artificiale, fornito senza alcuna garanzia di correttezza e completezza. Leggi il disclaimer o segnalaci un problema.
IMMAGINI
IN SINTESI
PROPOSTO DA:
Astexte Genova
DESCRIZIONE
da ristrutturare con ascensore da ristrutturare in asta giudiziaria
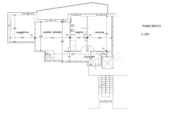
Appartamento a CARCARE via Roma 34/24, quartiere centrale, della superficie commerciale di 123,51 mq per la quota di 1/1 di piena proprietà. L'edificio è un condominio a 6 piani f.t. più sottotetto, edificato negli anni '60. L'affaccio principale è su via Roma, strada con traffico scorrevole di accesso alla zona centrale del Comune di Carcare, nei pressi della piazza principale su cui prospetta l'edificio Comunale. Il fabbricato è dotato di ascensore ed è in condizioni di manutenzione normale. L'immobile viene venduto dal tribunale tramite asta giudiziaria e il prezzo indicato si riferisce all'offerta minima. Per chi acquista come prima casa, sono previste agevolazioni. Cerchi casa all'Asta ? Ti sei già informato ? Pensi che il mutuo al 100% sia solo una pubblicità ? Astexte, la soluzione! Cosa aspetti ? HAI UNA CASA PIGNORATA ? POSSIAMO AIUTARTI ! CHIAMACI ALLO 0109841034

