Valutazione immobiliare indipendente, accurata e gratuita

Appartamento in vendita a Carcare a 96.946 € (cod.64e8c1bf)

Caasa non ha sufficienti informazioni per commentare l'appartamento in vendita a Carcare - 64e8c1bf.

Analisi immobiliare
I dati in posseso di Caasa per quest'immobile sono insufficienti, inaffidabili o contraddittori per proporre un'analisi attendibile.
Mercato immobiliare a Carcare
Per quanto riguarda più in generale il comune di Carcare, sono presenti al momento più di cento annunci per appartamenti in vendita (meno del 5% dell'intera provincia) .

La dinamica dei prezzi in tutto il comune mostra che negli ultimi 6 mesi, i prezzi per appartamenti in vendita sono in sostanziale calo (-7,17%).

NOVITÀ Il risultato che vedi dipende dai dati che siamo riusciti ad estrarre dall'annuncio: ottieni una stima più accuranta di questo immobile, inserendo dati più precisi.

N.B. L'Opinione di Caasa® è un servizio sperimentale realizzato tramite tecniche di Intelligenza Artificiale, fornito senza alcuna garanzia di correttezza e completezza. Leggi il disclaimer o segnalaci un problema.

IMMAGINI

IN SINTESI

Prezzo:
96.946 €
Superficie:
96 m²
Prezzo al m²:
1009 €/m²
Piano:
n.d. (con ascensore)
Bagni:
n.d.
Classe energetica:
n.d.
Città:
Carcare (SV)
Zona OMI:
B1 (V. GARIBALDI, V. CASTELLANI)
Indirizzo:
Pubblicato:
gio 2 ottobre 2025

PROPOSTO DA:

Astexte Genova

DESCRIZIONE

con ascensore in asta giudiziaria

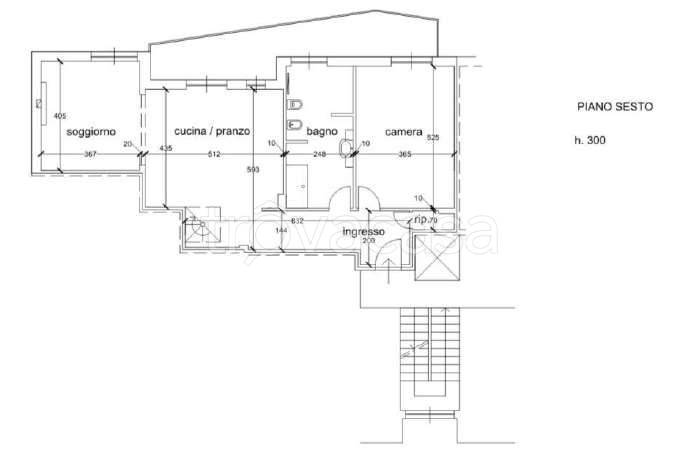
Appartamento a CARCARE via Roma 34/24, quartiere centrale, della superficie commerciale di 123,51 mq per la quota di 1/1 di piena proprietà. L'edificio è un condominio a 6 piani f.t. più sottotetto, edificato negli anni '60. L'affaccio principale è s […]

  • trovacasa.net