Valutazione immobiliare indipendente, accurata e gratuita
Casa indipendente in vendita a Cairo Montenotte a 178.819 € (cod.6599010c)
Caasa non ha sufficienti informazioni per commentare la casa indipendente in vendita a Cairo Montenotte - 6599010c.
Analisi immobiliare
I dati in posseso di Caasa per quest'immobile sono insufficienti, inaffidabili o contraddittori per proporre un'analisi attendibile.
Mercato immobiliare a Cairo Montenotte
Per quanto riguarda più in generale il comune di Cairo Montenotte, sono presenti al momento più di 200 annunci per
case indipendenti in vendita (meno del 5% dell'intera provincia) .
Per quanto riguarda la dinamica dei prezzi, negli ultimi 6 mesi i prezzi medi in tutto il comune per case indipendenti in vendita sono
in leggero aumento (+2,52%).
NOVITÀ Il risultato che vedi dipende dai dati che siamo riusciti ad estrarre dall'annuncio: ottieni una stima più accuranta di questo immobile, inserendo dati più precisi.
N.B. L'Opinione di Caasa® è un servizio sperimentale realizzato tramite tecniche di Intelligenza Artificiale, fornito senza alcuna garanzia di correttezza e completezza. Leggi il disclaimer o segnalaci un problema.
IMMAGINI
IN SINTESI
PROPOSTO DA:
L'abbruzzi Gruppo Immobiliare
DESCRIZIONE
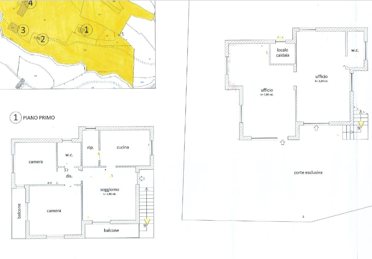
di recente costruzione con balcone con termocondizionamento con riscaldamento autonomo di recente costruzione in asta giudiziaria senza ascensore
Piena proprietà di compendio immobiliare composto da terreni contigui a formare un unico appezzamento con entrostanti fabbricati. - Il Prezzo visualizzato è la Base d'Asta in quanto l'immobile è oggetto di esecuzione immobiliare venduto tramite Asta Giudiziaria. - L'immobile aggiudicato, viene venduto libero e sgombro da persone cose ed ipoteche nello stato di fatto e di diritto in cui si trova. - Non rappresentiamo il Tribunale, ma lavoriamo nell'esclusivo interesse del potenziale acquirente per garantire un acquisto sicuro. - I consulenti di ASTE ITALIA ti assisteranno in tutte le attività dell'iter giudiziario dalla visita dell'immobile fino alla consegna chiavi. - Contatta il nostro Servizio Clienti , i nostri operatori sono a disposizione per chiarire i molteplici dubbi per partecipare alle ASTE




