Valutazione immobiliare indipendente, accurata e gratuita
Appartamento in vendita ad Albissola Marina a 223.000 € (cod.652f68dd)
Caasa non ha sufficienti informazioni per commentare l'appartamento in vendita ad Albissola Marina - 652f68dd.
Analisi immobiliare
I dati in posseso di Caasa per quest'immobile sono insufficienti, inaffidabili o contraddittori per proporre un'analisi attendibile.
Mercato immobiliare ad Albissola Marina
Per quanto riguarda più in generale il comune di Albissola Marina, sono presenti al momento più di 200 annunci per
appartamenti in vendita (meno del 5% dell'intera provincia) .
Relativamente alla dinamica dei prezzi, possiamo dire che negli ultimi 6 mesi i prezzi medi in tutto il comune per appartamenti in vendita sono
in sostanziale aumento (+6,25%).
NOVITÀ Il risultato che vedi dipende dai dati che siamo riusciti ad estrarre dall'annuncio: ottieni una stima più accuranta di questo immobile, inserendo dati più precisi.
N.B. L'Opinione di Caasa® è un servizio sperimentale realizzato tramite tecniche di Intelligenza Artificiale, fornito senza alcuna garanzia di correttezza e completezza. Leggi il disclaimer o segnalaci un problema.
IMMAGINI
IN SINTESI
PROPOSTO DA:
Astexte Genova
DESCRIZIONE
di recente costruzione di recente costruzione in asta giudiziaria
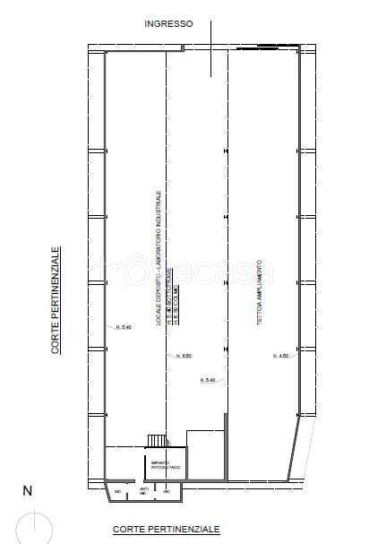
A. Capannone artigianale con ampia corte logistica pertinenziale recintata, il tutto della superficie commerciale di 470,50 mq., avente struttura portante costituita da pilastri e travature in acciaio e coperto con lastre ondulate in materiale plastico. Sul fondo della struttura si trova un piccolo blocco esterno adibito a servizio igienico ed una zona soppalcata a suo tempo adibita ad ufficio, al momento destinata esclusivamente a magazzino/deposito. A.1 Impianto fotovoltaico installato nel corso dell’anno 2011 sulla copertura del capannone composto da 390 moduli da 160 W ciascuno, per una potenza nominale totale di 62,4 kWp.. B. Laboratorio artigianale, con piccola corte pertinenziale, il tutto della superficie commerciale di 63,60 mq, attualmente adibito ad ufficio, composto da un unico piano fuori terra suddiviso internamente in due locali attraverso una tramezza. L'immobile viene venduto dal tribunale tramite asta giudiziaria e il prezzo indicato si riferisce all'offerta minima. Per chi acquista come prima casa, sono previste agevolazioni. Cerchi casa all'Asta ? Ti sei già informato ? Pensi che il mutuo al 100% sia solo una pubblicità ? Astexte, la soluzione! Cosa aspetti ? HAI UNA CASA PIGNORATA ? POSSIAMO AIUTARTI ! CHIAMACI ALLO 0109841034

