Valutazione immobiliare indipendente, accurata e gratuita
Casa indipendente in vendita ad Albenga a 248.079 € (cod.659900a1)
Caasa non ha sufficienti informazioni per commentare la casa indipendente in vendita ad Albenga - 659900a1.
Analisi immobiliare
I dati in posseso di Caasa per quest'immobile sono insufficienti, inaffidabili o contraddittori per proporre un'analisi attendibile.
Mercato immobiliare ad Albenga
Per quanto riguarda più in generale la città di Albenga, sono presenti al momento quasi 500 annunci per
case indipendenti in vendita (meno del 10% dell'intera provincia)
e il maggior numero di annunci per questa tipologia sono relativi alla zona di San Fedele.
Relativamente alla dinamica dei prezzi, possiamo dire che negli ultimi 6 mesi i prezzi medi in tutta la città per case indipendenti in vendita sono
sostanzialmente stabili (+0,49%).
NOVITÀ Il risultato che vedi dipende dai dati che siamo riusciti ad estrarre dall'annuncio: ottieni una stima più accuranta di questo immobile, inserendo dati più precisi.
N.B. L'Opinione di Caasa® è un servizio sperimentale realizzato tramite tecniche di Intelligenza Artificiale, fornito senza alcuna garanzia di correttezza e completezza. Leggi il disclaimer o segnalaci un problema.
IMMAGINI
IN SINTESI
PROPOSTO DA:
L'abbruzzi Gruppo Immobiliare
DESCRIZIONE
di recente costruzione con posto auto con termocondizionamento con cantina con balcone con riscaldamento autonomo di recente costruzione con giardino in asta giudiziaria senza ascensore
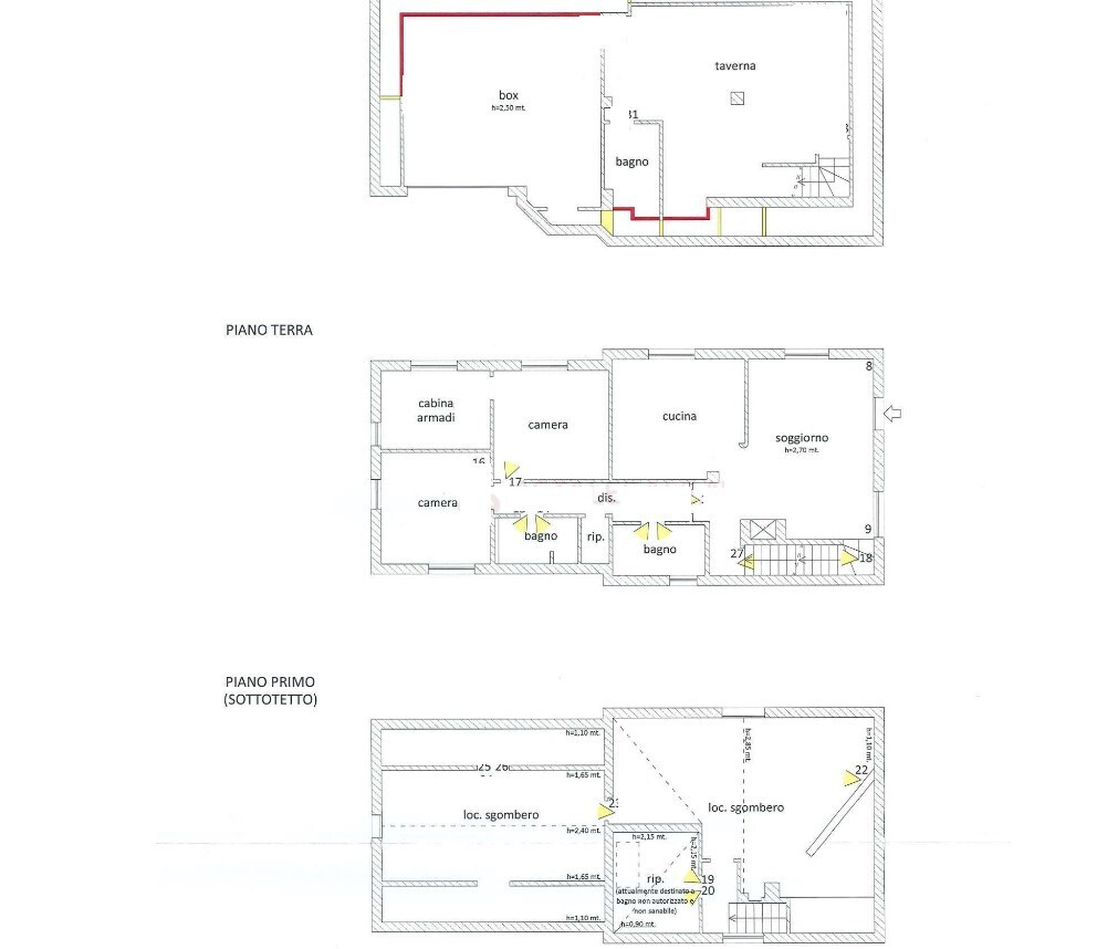
Villa singola (171,54 mq) con box e terreno (2.275 mq) con sovrastante serra (2.121 mq) ad Albenga (SV), Regione Rollo 117, per la piena proprietà. A) Villa singola con box, sup. commerciale di 171,54 mq per la piena proprietà.: Casa indipendente con accesso dal civ. 117 di Regione Rollo su 3 piani: - piano interrato, avente altezza interna pari a mt. 2,50 circa, composta da: taverna, bagno e box (di 20,53 mq commerciali); - piano terra, avente altezza interna pari a mt. 2,70 circa, composta da: soggiorno, cucina, disimpegno, 2bagni, ripostiglio, 2 camere, cabina armadio nonché corte esclusiva su 4 lati; - piano primo, attualmente avente altezze interne variabili da mt. 1,10 a mt. 2,85 circa, composto da 2 locali di sgombero. Pavimenti in listoni di legno e/o piastrelle di ceramica nei locali bagno, pareti tinteggiate e/o parzialmente rivestite in piastrelle di ceramica nei locali adibiti a bagno, porte interne in legno massello, finestre in PVC e vetro camera con grate di protezione in ferro e complete di persiane del tipo 'alla genovese' in alluminio anodizzato, porta di ingresso blindata. Riscaldamento autonomo con caldaia a gas metano ubicata esternamente e piastre radianti in alluminio. Impianto idrico ed elettrico realizzati sottotraccia e funzionanti. La scala interna è realizzata in struttura muraria finita con pietra serena. In generale le condizioni di manutenzione e conservazione e i caratteri di finitura interni risultano normali. - Il Prezzo visualizzato è la Base d'Asta in quanto l'immobile è oggetto di esecuzione immobiliare venduto tramite Asta Giudiziaria. - L'immobile aggiudicato, viene venduto libero e sgombro da persone cose ed ipoteche nello stato di fatto e di diritto in cui si trova. - Non rappresentiamo il Tribunale, ma lavoriamo nell'esclusivo interesse del potenziale acquirente per garantire un acquisto sicuro. - I consulenti di ASTE ITALIA ti assisteranno in tutte le attività dell'iter giudiziario dalla visita dell'immobile fino alla consegna chiavi. - Contatta il nostro Servizi[…]







