Valutazione immobiliare indipendente, accurata e gratuita

Casa indipendente in vendita ad Albenga in zona San Fedele a 87.464 € (cod.64e8c1c1)

Caasa non ha sufficienti informazioni per commentare la casa indipendente ad Albenga in zona San Fedele - 64e8c1c1.

Analisi immobiliare
I dati in posseso di Caasa per quest'immobile sono insufficienti, inaffidabili o contraddittori per proporre un'analisi attendibile.
Mercato immobiliare ad Albenga
Per quanto riguarda più in generale la città di Albenga, sono presenti al momento quasi 500 annunci per case indipendenti in vendita (meno del 10% dell'intera provincia) e il maggior numero di annunci per questa tipologia sono relativi alla zona di Lusignano, ma anche la zona di San Fedele è molto attiva dal punto di vista immobiliare.
La richiesta media nella zona dove sorge la casa indipendente (San Fedele) è pari a 1.825 €/m² che la rende la più economica della città .
Relativamente alla dinamica dei prezzi, possiamo dire che negli ultimi 6 mesi i prezzi medi in tutta la città per case indipendenti in vendita sono in leggero aumento (+2,75%).

NOVITÀ Il risultato che vedi dipende dai dati che siamo riusciti ad estrarre dall'annuncio: ottieni una stima più accuranta di questo immobile, inserendo dati più precisi.

N.B. L'Opinione di Caasa® è un servizio sperimentale realizzato tramite tecniche di Intelligenza Artificiale, fornito senza alcuna garanzia di correttezza e completezza. Leggi il disclaimer o segnalaci un problema.

IMMAGINI

IN SINTESI

Prezzo:
87.464 €
Superficie:
117 m²
Prezzo al m²:
747 €/m²
Piano:
n.d.
Bagni:
1
Classe energetica:
n.d.
Città:
Albenga (SV)
Indirizzo:
Pubblicato:
gio 2 ottobre 2025

PROPOSTO DA:

Astexte

DESCRIZIONE

con terrazza con posto auto con giardino con garage in asta giudiziaria

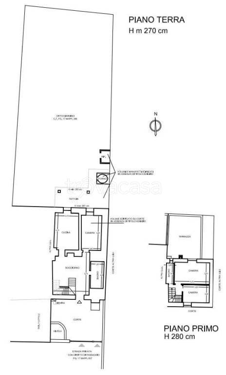
Casa semi indipendente avente accesso da piccola corte esclusiva pavimentata, sviluppata su due piani collegati da scala interna, composta al piano terreno da cucina, soggiorno, servizio igienico e una camera (non autorizzata e da demolire) e al piano primo da due camere e un bagno, il tutto per una superficie commerciale complessiva di circa mq 117, con area adibita a giardino dell'abitazione della superficie catastale di mq 330 (sulla quale insistono una tettoia, un forno ed un piccolo magazzino) e con autorimessa composta da unico vano della superficie catastale di mq 28. L'unità immobiliare oggetto di valutazione è posta in zona semicentrale del Comune di Albenga, Frazione San Fedele a breve distanza dal centro cittadino, ai piedi della borgata storica comoda ai servizi ed a circa tre chilometri dall'arenile. L'immobile viene venduto dal tribunale tramite asta giudiziaria e il prezzo indicato si riferisce all'offerta minima. Per chi acquista come prima casa, sono previste agevolazioni. Cerchi casa all'Asta ? Ti sei già informato ? Pensi che il mutuo al 100% sia solo una pubblicità ? Astexte, la soluzione! Cosa aspetti ? HAI UNA CASA PIGNORATA ? POSSIAMO AIUTARTI ! CHIAMACI ALLO 0237908901

  • trovacasa.net
  • annuncio-casa.it