Valutazione immobiliare indipendente, accurata e gratuita
Casa indipendente in vendita a Sarzana a 320.000 € (cod.649eef67)
Caasa non ha sufficienti informazioni per commentare la casa indipendente in vendita a Sarzana - 649eef67.
Analisi immobiliare
I dati in posseso di Caasa per quest'immobile sono insufficienti, inaffidabili o contraddittori per proporre un'analisi attendibile.
Mercato immobiliare a Sarzana
Per quanto riguarda più in generale la città di Sarzana, sono presenti al momento ben oltre mille annunci per
case indipendenti in vendita (quasi il 20% dell'intera provincia)
e il maggior numero di annunci per questa tipologia sono relativi alla zona di Falcinello.
La dinamica dei prezzi in tutta la città mostra che negli ultimi 6 mesi, i prezzi per case indipendenti in vendita sono
sostanzialmente stabili (-0,66%).
NOVITÀ Il risultato che vedi dipende dai dati che siamo riusciti ad estrarre dall'annuncio: ottieni una stima più accuranta di questo immobile, inserendo dati più precisi.
N.B. L'Opinione di Caasa® è un servizio sperimentale realizzato tramite tecniche di Intelligenza Artificiale, fornito senza alcuna garanzia di correttezza e completezza. Leggi il disclaimer o segnalaci un problema.
IMMAGINI
IN SINTESI
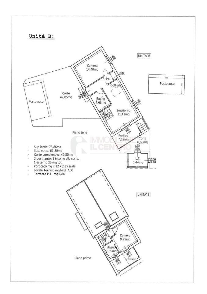
DESCRIZIONE
con posto auto con giardino con terrazza con cantina con angolo cottura con termocondizionamento con climatizzazione
Nuova proposta di Immobiliare Il Centro! Nel Comune di Sarzana in Loc. Nave, proponiamo in complesso trifamigliare in fase di completa costruzione semindipendente terratetto con giardino privato con posto auto interno oltre ad ulteriore posto auto esterno. L'immobile disposto su due livelli è composto da: al Piano Terra ingresso da corridoio, soggiorno con angolo cottura e porticato con accesso a corte, disimpegno, camera e bagno; al Piano Primo camera con bagno e terrazza abitabile. Completa la proprietà una cantina. Ottime rifiniture (riscaldamento a pavimento integrato con pompe di calore per acqua sanitaria, pannelli fotovoltaici da 3,5 kW ad appartamento, pompe di calore). Detrazione fiscale per bonus edilizio di €96.000, detraibile al 50



