Valutazione immobiliare indipendente, accurata e gratuita
L'Opinione di Caasa® per la casa indipendente in affitto a Sarzana a 1.500 € mese (cod.64c901ea)
Secondo Caasa, per la casa indipendente in affitto a Sarzana, la richiesta di 1.500 € mese è equilibrata rispetto agli annunci simili.
Analisi immobiliare
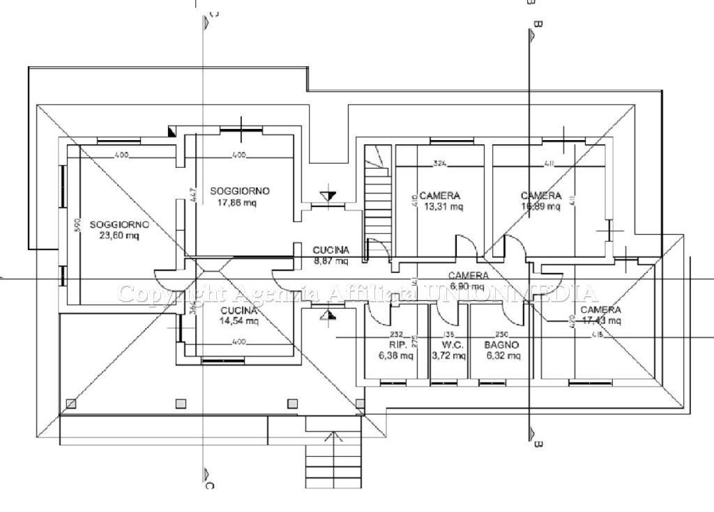
La casa indipendente, situata nella zona OMI D1, è proposta in affitto (da UNION-MEDIA) a
1.500 € mese per una
superficie commerciale di
150 m² e quindi ad un prezzo per metro quadrato pari a
10 €/m²
.
Questo prezzo
è molto vicino a quello stimato da Caasa per immobili in affitto simili per tipologia e caratteristiche, presenti nella stessa zona, che è compreso tra
9,4 €/m² mese e
10,2 €/m² mese.
Data la posizione della casa indipendente sono stati utilizzati come raffronto i valori medi nelle zone limitrofe . Caasa non è stata in grado di determinare la classe energetica, ma ad affinare la stima hanno contribuito però anche lo stato dell'immobile (da ristrutturare) e la presenza di alcune caratteristiche significative come il garage o la disponibilità di una cantina. Per questi motivi l'intervallo dei valori possibili per l'offerta è relativamente ampio.
Mercato immobiliare a Sarzana
Per quanto riguarda più in generale la città di Sarzana, sono presenti al momento più di cinquanta annunci per
case indipendenti in affitto (quasi il 20% dell'intera provincia)
e il maggior numero di annunci per questa tipologia sono relativi alla zona di San Lazzaro.
Possiamo inoltre considerare che in tutta la città negli ultimi 6 mesi, i prezzi per case indipendenti in affitto sono
in leggero aumento (+2,60%).
NOVITÀ Il risultato che vedi dipende dai dati che siamo riusciti ad estrarre dall'annuncio: ottieni una stima più accuranta di questo immobile, inserendo dati più precisi.
N.B. L'Opinione di Caasa® è un servizio sperimentale realizzato tramite tecniche di Intelligenza Artificiale, fornito senza alcuna garanzia di correttezza e completezza. Leggi il disclaimer o segnalaci un problema.
IMMAGINI
IN SINTESI
DESCRIZIONE
da ristrutturare con posto auto con terrazza di recente costruzione con balcone con cantina con cucina abitabile senza ascensore con garage da ristrutturare
Sarzana, in zona tranquilla, soleggiata ed immersa nel verde, a 2 km dal centro, si affitta bellissima villa indipendente inserita in 1000 mq di parco. Composta da: piano terreno - taverna e garage per mq 180 circa; piano primo di mq 150 con ingresso […]
