Valutazione immobiliare indipendente, accurata e gratuita
Casa indipendente in vendita a Luni in zona Isola a 440.000 € (cod.64eb2309)
Caasa non ha sufficienti informazioni per commentare la casa indipendente in vendita a Luni in zona Isola - 64eb2309.
Analisi immobiliare
I dati in posseso di Caasa per quest'immobile sono insufficienti, inaffidabili o contraddittori per proporre un'analisi attendibile.
Mercato immobiliare a Luni
Per quanto riguarda più in generale il comune di Luni, sono presenti al momento oltre 500 annunci per
case indipendenti in vendita (meno del 10% dell'intera provincia)
e il maggior numero di annunci per questa tipologia sono relativi alla zona di Casano, mentre nella zona di Isola è presente un numero significativamente inferiore di annunci.
La richiesta media nella zona dove sorge la casa indipendente (Isola) è pari a
2.100 €/m², molto vicina ai valori della zona Dogana che sono i più alti del comune .
Relativamente alla dinamica dei prezzi, possiamo dire che negli ultimi 6 mesi i prezzi medi in tutto il comune per case indipendenti in vendita sono
sostanzialmente stabili (-0,50%).
NOVITÀ Il risultato che vedi dipende dai dati che siamo riusciti ad estrarre dall'annuncio: ottieni una stima più accuranta di questo immobile, inserendo dati più precisi.
N.B. L'Opinione di Caasa® è un servizio sperimentale realizzato tramite tecniche di Intelligenza Artificiale, fornito senza alcuna garanzia di correttezza e completezza. Leggi il disclaimer o segnalaci un problema.
IMMAGINI
IN SINTESI
DESCRIZIONE
con giardino con terrazza con posto auto con cantina con balcone con cucina abitabile con termocondizionamento con garage con riscaldamento autonomo
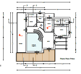
Rif.Ag. 313 - VILLA A GREZZO CON AMPIO GIARDINO A ISOLA DI LUNI RIF 313 Villa in corso di costruzione con 5500 mq di giardino privato ubicata in zona verde e residenziale. Vicino ai servizi della piana di Luni ma in posizione panoramica. Il fabbricato monofamiliare è disposto su più piani: piano terra, primo e con accessori al piano seminterrato La superficie è suddivisa in: _Ingresso, soggiorno, pranzo cucina, dispensa, studio, bagno, lavanderia, al piano terra (circa 158 mq). _Camera matrimoniale con bagno e guardaroba, due camere singole, bagno e studio aperto sul soggiorno al piano primo (circa 97 mq) vuoto sul soggiorno di circa 29 mq. _Locali accessori al piano seminterrato collegato direttamente con linterno (circa 134 mq) e dotato di scala esterna per accesso al giardino. Porticato al piano terra da 29 mq e pergolato da 11 mq, due terrazze al piano primo per un totale di circa 34 mq, due posti auto esterni La richiesta è relativa al fabbricato al grezzo formato da strutture in cemento armato, copertura coibentata e tegole e con canale in alluminio color rame. - SC9474032









