Valutazione immobiliare indipendente, accurata e gratuita

Casa indipendente in vendita a Luni in zona Isola a 220.000 € (cod.64a0cb68)

Caasa non ha sufficienti informazioni per commentare la casa indipendente in vendita a Luni in zona Isola - 64a0cb68.

Analisi immobiliare
I dati in posseso di Caasa per quest'immobile sono insufficienti, inaffidabili o contraddittori per proporre un'analisi attendibile.
Mercato immobiliare a Luni
Per quanto riguarda più in generale il comune di Luni, sono presenti al momento oltre 500 annunci per case indipendenti in vendita (meno del 10% dell'intera provincia) e il maggior numero di annunci per questa tipologia sono relativi alla zona di Dogana, mentre nella zona di Isola è presente un numero significativamente inferiore di annunci.
La richiesta media nella zona dove sorge la casa indipendente (Isola) è pari a 2.040 €/m², molto vicina ai valori della zona Dogana che sono i più alti del comune .
Per quanto riguarda la dinamica dei prezzi, negli ultimi 6 mesi i prezzi medi in tutto il comune per case indipendenti in vendita sono in calo (-3,48%).

NOVITÀ Il risultato che vedi dipende dai dati che siamo riusciti ad estrarre dall'annuncio: ottieni una stima più accuranta di questo immobile, inserendo dati più precisi.

N.B. L'Opinione di Caasa® è un servizio sperimentale realizzato tramite tecniche di Intelligenza Artificiale, fornito senza alcuna garanzia di correttezza e completezza. Leggi il disclaimer o segnalaci un problema.

IMMAGINI

IN SINTESI

Prezzo:
220.000 €
Superficie:
160 m²
Prezzo al m²:
1375 €/m²
Piano:
n.d.
Bagni:
n.d.
Classe energetica:
n.d.
Città:
Luni (SP)
Zona OMI:
B2 (CASANO, CAFGGIOLA, OLMARELLO, DOGANA, FOSSONE, SERRAVALLE, PIANA DI LUNI)
Indirizzo:
Pubblicato:
lun 14 ottobre 2024

PROPOSTO DA:

logo Elite Immobiliare

Elite Immobiliare

Via toniolo, /bis 8, Carrara (MS)

Vai ai contatti

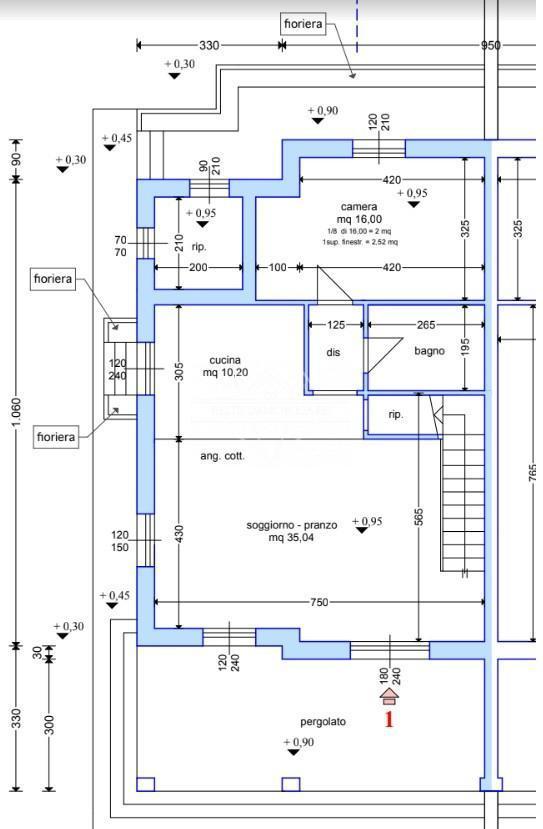
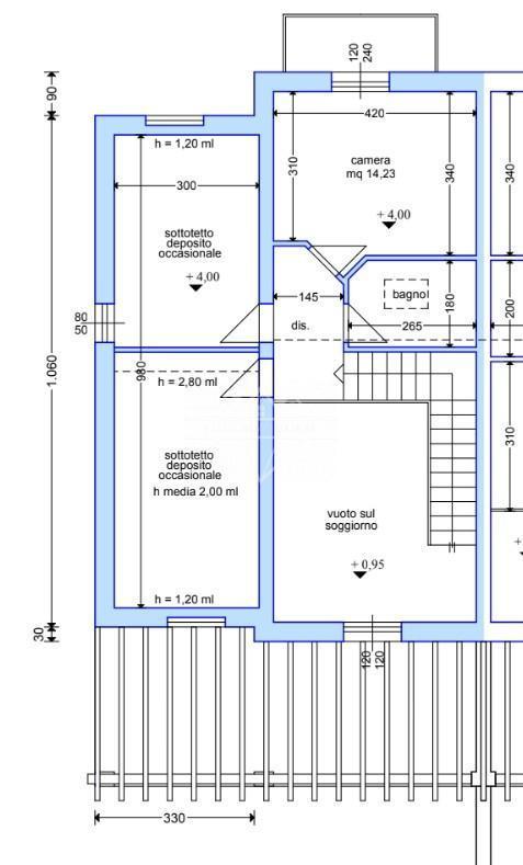
DESCRIZIONE

con posto auto con giardino

Cod.11641 Rif.Ag. E345 - COMUNE DI LUNI In zona residenziale e tranquilla, proponiamo ultima porzione di Villa Bifamiliare di 160 mq disposta su due livelli. GIARDINO di circa 200 mq con POSTI AUTO interni. Prezzo al grezzo, allo stato attuale € 220.000 (come da foto). Possibilità di terminare la costruzione come da capitolato con personalizzazione interna anche per quanto riguarda la distribuzione degli spazi interni. Classe energetica: Esente - Rif. E345

  • wikicasa.free
  • pcase.it
  • bakeca.it
  • bachecacase.com
  • bilocale.it
  • ioaffitto.it
  • trovacasa.net
  • yescasa.it