Valutazione immobiliare indipendente, accurata e gratuita
Casa indipendente a Castelnuovo Magra in zona Molicciara a 310.000 € (cod.65806b90)
Caasa non ha sufficienti informazioni per commentare la casa indipendente a Castelnuovo Magra Molicciara - 65806b90.
Analisi immobiliare
I dati in posseso di Caasa per quest'immobile sono insufficienti, inaffidabili o contraddittori per proporre un'analisi attendibile.
Mercato immobiliare a Castelnuovo Magra
Per quanto riguarda più in generale il comune di Castelnuovo Magra, sono presenti al momento oltre 500 annunci per
case indipendenti in vendita (meno del 10% dell'intera provincia)
e il maggior numero di annunci per questa tipologia sono relativi proprio alla zona di Molicciara.
La richiesta media nella zona dove sorge la casa indipendente (Molicciara) è pari a
2.015 €/m², molto vicina ai valori della zona Colombiera che sono i più alti del comune .
Per quanto riguarda la dinamica dei prezzi, negli ultimi 6 mesi i prezzi medi in tutto il comune per case indipendenti in vendita sono
in debole aumento (+1,92%).
NOVITÀ Il risultato che vedi dipende dai dati che siamo riusciti ad estrarre dall'annuncio: ottieni una stima più accuranta di questo immobile, inserendo dati più precisi.
N.B. L'Opinione di Caasa® è un servizio sperimentale realizzato tramite tecniche di Intelligenza Artificiale, fornito senza alcuna garanzia di correttezza e completezza. Leggi il disclaimer o segnalaci un problema.
IMMAGINI
IN SINTESI
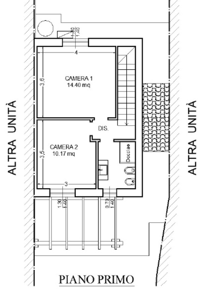
DESCRIZIONE
di nuova costruzione con giardino con posto auto con garage di nuova costruzione
Castelnuovo Magra, località Molicciara. In zona centrale, vicino a tutti i servizi ma defilata dal traffico veicolare, proponiamo villetta a schiera di nuova costruzione in edificio trifamiliare. Unità B- Villetta elevata a due piani fuori terra – Pi […]
