Valutazione immobiliare indipendente, accurata e gratuita
Casa indipendente a Castelnuovo Magra in zona Palvotrisia a 350.000 € (cod.653bc944)
Caasa non ha sufficienti informazioni per commentare la casa indipendente a Castelnuovo Magra Palvotrisia - 653bc944.
Analisi immobiliare
I dati in posseso di Caasa per quest'immobile sono insufficienti, inaffidabili o contraddittori per proporre un'analisi attendibile.
Mercato immobiliare a Castelnuovo Magra
Per quanto riguarda più in generale il comune di Castelnuovo Magra, sono presenti al momento oltre 500 annunci per
case indipendenti in vendita (meno del 10% dell'intera provincia)
e il maggior numero di annunci per questa tipologia sono relativi alla zona di Molicciara, mentre la zona di Palvotrisia risulta molto meno attiva considerando il numero di annunci presenti.
La richiesta media nella zona dove sorge la casa indipendente (Palvotrisia) è pari a
2.100 €/m² e ne fa la più pregiata del comune .
Per quanto riguarda la dinamica dei prezzi, negli ultimi 6 mesi i prezzi medi in tutto il comune per case indipendenti in vendita sono
in leggera diminuzione (-2,69%).
NOVITÀ Il risultato che vedi dipende dai dati che siamo riusciti ad estrarre dall'annuncio: ottieni una stima più accuranta di questo immobile, inserendo dati più precisi.
N.B. L'Opinione di Caasa® è un servizio sperimentale realizzato tramite tecniche di Intelligenza Artificiale, fornito senza alcuna garanzia di correttezza e completezza. Leggi il disclaimer o segnalaci un problema.
IMMAGINI
IN SINTESI
PROPOSTO DA:
I.L. IMMOBILIARE LUCHESINI
DESCRIZIONE
con posto auto con giardino con cantina con terrazza con cucina abitabile
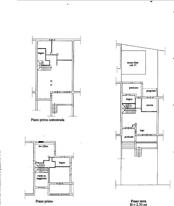
Cod.11682 Rif.Ag. 23997 - Castelnuovo Magra, loc. Palvotrisia, in zona residenziale ed in comoda posizione, vicina a tutti i servizi, disponiamo di villetta a schiera centrale di ottima fattura, ben tenuta e totalmente arredata. L’immobile dispone di un giardino sul fronte, e di una corte pavimentata con posto auto sul retro, oltre a pergolati, porticati, terrazze e verande, che permettono di vivere l'immobile con comodità anche all'aperto, nella tranquillità e con una vista aperta sino al mare. Si entra da una comoda veranda che ci conduce al soggiorno in doppia altezza, di seguito una sala da pranzo e una cucina abitabile con apertura verso il pergolato e il porticato sul retro, un piccolo disimpegno, ed un bagno con doccia. Tramite comoda scala si accede al piano primo mansardato tutto in parquet, dove troviamo una camera matrimoniale terrazzata con vista sino al mare, un bagno con vasca ed un'ulteriore vano mansardato. Al piano seminterrato, con accesso sia dall'interno della casa che direttamente dall'esterno, troviamo una grande taverna, molto ben tenuta e luminosa (una portone e due porte finestre) un ripostiglio, una lavanderia ed una cantina. L’immobile è disponibile da subito









