Valutazione immobiliare indipendente, accurata e gratuita

Appartamento in vendita a Brugnato a 90.000 € (cod.64e83f3f)

Caasa non ha sufficienti informazioni per commentare l'appartamento in vendita a Brugnato - 64e83f3f.

Analisi immobiliare
I dati in posseso di Caasa per quest'immobile sono insufficienti, inaffidabili o contraddittori per proporre un'analisi attendibile.
Mercato immobiliare a Brugnato
Per quanto riguarda più in generale il comune di Brugnato, sono presenti al momento più di trenta annunci per appartamenti in vendita (meno dell'1% dell'intera provincia) .

La dinamica dei prezzi in tutto il comune mostra che negli ultimi 6 mesi, i prezzi per appartamenti in vendita sono in forte aumento (+12,65%).

NOVITÀ Il risultato che vedi dipende dai dati che siamo riusciti ad estrarre dall'annuncio: ottieni una stima più accuranta di questo immobile, inserendo dati più precisi.

N.B. L'Opinione di Caasa® è un servizio sperimentale realizzato tramite tecniche di Intelligenza Artificiale, fornito senza alcuna garanzia di correttezza e completezza. Leggi il disclaimer o segnalaci un problema.

IMMAGINI

IN SINTESI

Prezzo:
90.000 €
Superficie:
55 m²
Prezzo al m²:
1636 €/m²
Piano:
terra
Bagni:
n.d.
Classe energetica:
F
Città:
Brugnato (SP)
Zona OMI:
B1 (BRUGNATO CENTRO STORICO)
Indirizzo:
Pubblicato:
sab 4 ottobre 2025

PROPOSTO DA:

AGENZIA ARBASETTI IMMOBILIARE

DESCRIZIONE

di recente ristrutturazione con termocondizionamento con cucina abitabile di recente ristrutturazione con riscaldamento autonomo

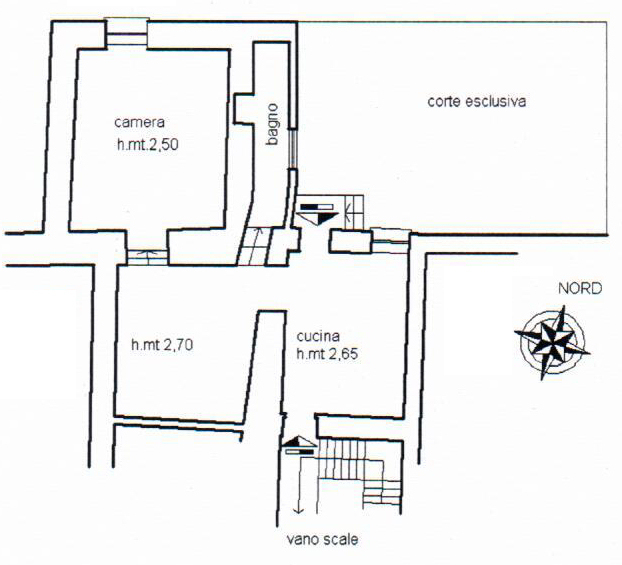
Rif. 508) Brugnato, zona centro storico. Vendesi appartamento di mq 55 completamente ristrutturato, al piano rialzato, composto da soggiorno, cucina, camera, bagno, con spazio esterno di circa mq 40. Doppio ingresso. Riscaldamento autonomo. - SC9472203

  • immobiliare.it
  • pcase.it
  • bakeca.it
  • idealista.it
  • vetrinaannunci.com