Valutazione immobiliare indipendente, accurata e gratuita
Casa indipendente in vendita ad Arcola a 80.000 € (cod.658c9fe3)
Caasa non ha sufficienti informazioni per commentare la casa indipendente in vendita ad Arcola - 658c9fe3.
Analisi immobiliare
I dati in posseso di Caasa per quest'immobile sono insufficienti, inaffidabili o contraddittori per proporre un'analisi attendibile.
Mercato immobiliare ad Arcola
Per quanto riguarda più in generale il comune di Arcola, sono presenti al momento più di 300 annunci per
case indipendenti in vendita (meno del 10% dell'intera provincia)
e il maggior numero di annunci per questa tipologia sono relativi alla zona di Romito Magra.
La dinamica dei prezzi in tutto il comune mostra che negli ultimi 6 mesi, i prezzi per case indipendenti in vendita sono
in debole diminuzione (-1,78%).
NOVITÀ Il risultato che vedi dipende dai dati che siamo riusciti ad estrarre dall'annuncio: ottieni una stima più accuranta di questo immobile, inserendo dati più precisi.
N.B. L'Opinione di Caasa® è un servizio sperimentale realizzato tramite tecniche di Intelligenza Artificiale, fornito senza alcuna garanzia di correttezza e completezza. Leggi il disclaimer o segnalaci un problema.
IMMAGINI
IN SINTESI
DESCRIZIONE
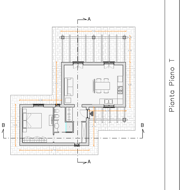
di recente ristrutturazione con balcone con giardino di recente ristrutturazione con angolo cottura senza ascensore
Bella posizione soleggiata, periferica ma comodamente raggiungibile, contesto residenziale, proponiamo terreno della superficie di 1050mq circa, edificabile, per realizzare villetta indipendente di 70mq oltre accessori. Il progetto è approvato e gli oneri pagati. Il terreno è completamente cintato, con strada carrabile e servito da energia elettrica,è presente un pozzo funzionante. L'allaccio dell'acqua e degli altri eventuali servizi è a poca distanza. La costruzione può essere iniziata immediatamente. oneri relativi ai calcoli statici, alla direzione lavori e successivi sono a carico dell'acquirente. Nel terreno è esistente un fabbricato di cui è prevista la demolizione o la ristrutturazione confoememente al progetto approvato




