Valutazione immobiliare indipendente, accurata e gratuita

Appartamento in vendita ad Arcola a 115.000 € (cod.64ebbedf)

Caasa non ha sufficienti informazioni per commentare l'appartamento in vendita ad Arcola - 64ebbedf.

Analisi immobiliare
I dati in posseso di Caasa per quest'immobile sono insufficienti, inaffidabili o contraddittori per proporre un'analisi attendibile.
Mercato immobiliare ad Arcola
Per quanto riguarda più in generale il comune di Arcola, sono presenti al momento oltre 500 annunci per appartamenti in vendita (meno del 10% dell'intera provincia) e il maggior numero di annunci per questa tipologia sono relativi alla zona di Romito Magra.

La dinamica dei prezzi in tutto il comune mostra che negli ultimi 6 mesi, i prezzi per appartamenti in vendita sono sostanzialmente stabili (+1,00%).

NOVITÀ Il risultato che vedi dipende dai dati che siamo riusciti ad estrarre dall'annuncio: ottieni una stima più accuranta di questo immobile, inserendo dati più precisi.

N.B. L'Opinione di Caasa® è un servizio sperimentale realizzato tramite tecniche di Intelligenza Artificiale, fornito senza alcuna garanzia di correttezza e completezza. Leggi il disclaimer o segnalaci un problema.

IMMAGINI

IN SINTESI

Prezzo:
115.000 €
Superficie:
28 m²
Prezzo al m²:
4107 €/m²
Piano:
terra
Bagni:
1
Classe energetica:
E
Città:
Arcola (SP)
Zona OMI:
R2 (FRAZIONI E PARTE RESIDUALE DEL TERRITORIO CON EDIFICAZIONE SPARSA)
Indirizzo:
Pubblicato:
mar 30 aprile 2024

PROPOSTO DA:

SOGNO CASA DI SALVINI MANUELA MARIA CLARA & C. S.A.S.

DESCRIZIONE

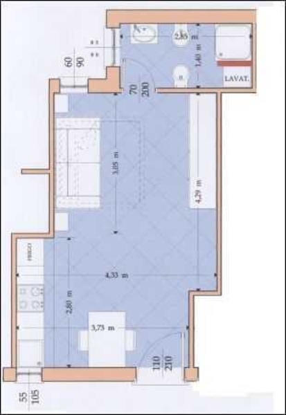
di recente ristrutturazione di recente ristrutturazione con angolo cottura

ARCOLA NELLE VICINANZE DI LERICI MONOLOCALE DISPOSTO AL PIANO TERRA COMPOSTO DA INGRESSO SOGGIORNO CON ANGOLO COTTURA,BAGNO E VERANDA PRANZABILE DI 10 MQ. COMPLETAMENTE RISTRUTTURATO CON OTTIME RIFINITURE, ARREDATO CON CLIMA. Per tutelare la privacy dei nostri clienti vi informiamo che l’indirizzo e’ approssimativo e le informazioni e i valori presenti nell’annuncio non costituiscono, in alcun modo, elemento contrattuale. Le informazioni dettagliate e specifiche dell’immobile verranno fornite compilando il form dell’agenzia o contattandoci telefonicamente

  • yescasa.it
  • case24.it
  • idealista.it
  • vetrinaannunci.com