Valutazione immobiliare indipendente, accurata e gratuita
Appartamento in vendita a Ventimiglia a 375.000 € (cod.655c4095)
Caasa non ha sufficienti informazioni per commentare l'appartamento in vendita a Ventimiglia - 655c4095.
Analisi immobiliare
I dati in posseso di Caasa per quest'immobile sono insufficienti, inaffidabili o contraddittori per proporre un'analisi attendibile.
Mercato immobiliare a Ventimiglia
Per quanto riguarda più in generale la città di Ventimiglia, sono presenti al momento ben oltre mille annunci per
appartamenti in vendita (quasi il 20% dell'intera provincia)
e il maggior numero di annunci per questa tipologia sono relativi alla zona di Latte.
Relativamente alla dinamica dei prezzi, possiamo dire che negli ultimi 6 mesi i prezzi medi in tutta la città per appartamenti in vendita sono
sostanzialmente stabili (+0,09%).
NOVITÀ Il risultato che vedi dipende dai dati che siamo riusciti ad estrarre dall'annuncio: ottieni una stima più accuranta di questo immobile, inserendo dati più precisi.
N.B. L'Opinione di Caasa® è un servizio sperimentale realizzato tramite tecniche di Intelligenza Artificiale, fornito senza alcuna garanzia di correttezza e completezza. Leggi il disclaimer o segnalaci un problema.
IMMAGINI
IN SINTESI
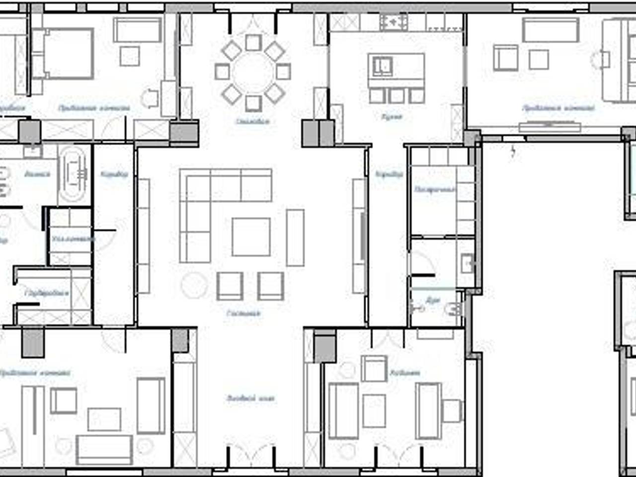
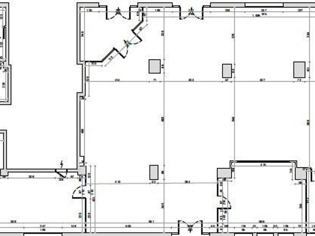
DESCRIZIONE
con posto auto
Occasione imperdibile a Ventimiglia in Via Tacito - Locale commerciale ma volendo trasformabile in residenziale , come da planimetri allegata in Vendita - Superfice mq 415 . Prezzo euro 380000 ( inferiore a 1000 euro / mq ) . Siamo lieti di presentarvi una opportunità unica per acquistare un ampio locale commerciale - residenziale , situato a circa 400 metri dal mare . L'immobile volendo , offre tre ingressi distinti che lo rende facilmente frazionabile secondo le richieste ed esigenze. Caratteristiche 415 . mq . / tre ingressi frazionabile / di proprietà ed di pertinenza accesso a 10 posti auto ( valore a singolo posto auto euro 7.000 ) inclusi nel prezzo . Posizione strategica a 300/400 mt dal mare. di fronte attualmente ce una area verde che a breve sarà destinata ad diventare un grande centro commerciale . Ottimo potenziale di investimento . Questa è una vera occasione per chi cerca un immobile versatile da utilizzare come locale commerciale o come residenza . Non perdere l'opportunità di investire in una are ad forte sviluppo . Siamo a disposizione per visite , senza alcun impegno. - treeconsult3@gmai.com 3484104431 Locale ideale per studio o centro medico ( di cui la zona ne è sprovvista




