Valutazione immobiliare indipendente, accurata e gratuita
L'Opinione di Caasa® per l'appartamento in vendita a Taggia in zona Arma di Taggia a 270.000 € (cod.657e4609)
Secondo Caasa, per l'appartamento a Taggia in zona Arma di Taggia, la richiesta di 270.000 € è significativamente vantaggiosa rispetto agli annunci simili.
Analisi immobiliare
L'appartamento, situato nella zona OMI B3, è proposto in vendita (da AGENZIA IMMOBILIARE MARINA) a
270.000 € per una
superficie commerciale di
100 m² e quindi ad un prezzo per metro quadrato pari a
2700 €/m²
.
Tale prezzo
è più conveniente di quello stimato da Caasa per immobili in vendita simili per tipologia e caratteristiche e localizzati nella stessa zona OMI, che è compreso tra
3.445 €/m² e
3.764 €/m².
Grazie alla conoscenza con buona approssimazione della localizzazione dell'immobile, è stato possibile utilizzare come raffronto i dati medi elaborati esattamente nella zona OMI di appertenenza (FASCIA COSTIERA IN PROSSIMITA` V.AURELIA E V.MORENE FINO AL MARE, TRAVER.OVES...) per appartamenti (da 2.470 €/m² a 4.335 €/m²) e per trivani (da 2.680 €/m² a 4.955 €/m²). Anche se Caasa non è riuscita a determinare la classe energetica, ad affinare la stima hanno contribuito anche lo stato dell'immobile (di recente ristrutturazione) e la presenza di alcune caratteristiche significative come la disponibilità di una cantina. Per questi motivi i valori accettabili per l'offerta costituiscono un intervallo relativamente limitato.
Mercato immobiliare a Taggia
Per quanto riguarda più in generale il comune di Taggia, sono presenti al momento quasi 500 annunci per
appartamenti in vendita (meno del 5% dell'intera provincia)
e il maggior numero di annunci per questa tipologia sono relativi proprio alla zona di Arma di Taggia.
Per quanto riguarda la richiesta media in zona Arma di Taggia, dove sorge l'appartamento, essa è pari a circa
3.460 €/m² per appartamenti in vendita.
Relativamente alla dinamica dei prezzi, possiamo dire che negli ultimi 6 mesi i prezzi medi in tutto il comune per appartamenti in vendita sono
in aumento (+3,55%).
NOVITÀ Il risultato che vedi dipende dai dati che siamo riusciti ad estrarre dall'annuncio: ottieni una stima più accuranta di questo immobile, inserendo dati più precisi.
N.B. L'Opinione di Caasa® è un servizio sperimentale realizzato tramite tecniche di Intelligenza Artificiale, fornito senza alcuna garanzia di correttezza e completezza. Leggi il disclaimer o segnalaci un problema.
IMMAGINI
IN SINTESI
DESCRIZIONE
di recente ristrutturazione con terrazza con termocondizionamento con cantina con balcone di recente ristrutturazione con riscaldamento autonomo senza ascensore
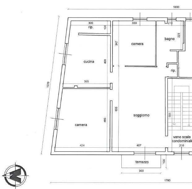
ARMA DI TAGGIA - IN ZONA CENTRALE COMODA E TRANQUILLA, appartamento soleggiato ristrutturato di 100 mq., posto al 1° piano senza ascensore di stabile molto ben tenuto privo di spese condominiali, composto da: grande salone con zona pranzo e zona soggiorno, cucina abitabile, 2 camere da letto, grandissimo ripostiglio, grande bagno dotato di vasca, doccia e finestra. Balcone. Facilmente ricavabili 3 camere da letto e soggiorno con angolo cottura. Tripla esposizione. Riscaldamento autonomo, condizionatore. Prezzo richiesto: € 270.000. In attesa di certificazione energetica (rif. 72). Agenzia Immobiliare Marina 0184/44525 - 330/902811 - info@immobiliaremarina.info - www.immobiliaremarina.info - Facebook: AGENZIA IMMOBILIARE MARINA / Instagram: ag.immobiliaremarina #riviera, #ligure, #mare, #spiaggia, #sole, #taggia, #armaditaggia, #taggiasca, #rivieradeifiori, #cicloturismo, #pistaciclabile, #estremoponenteligure, #quadrilocale N.B.: La presente scheda, le informazioni ed i contenuti dei nostri annunci, brochure e pagine web non costituiscono elemento contrattuale e non vincolano in alcun modo l’agenzia; pertanto descrizione, planimetrie, misure e posizione sono da ritenersi del tutto indicative e non esaustive in merito a un contratto di vendita della propriet


