Valutazione immobiliare indipendente, accurata e gratuita
L'Opinione di Caasa® per l'appartamento in vendita a Taggia in zona Arma di Taggia a 145.000 € (cod.655ec841)
Secondo Caasa, per l'appartamento a Taggia in zona Arma di Taggia, la richiesta di 145.000 € è leggermente svantaggiosa rispetto agli annunci simili.
Analisi immobiliare
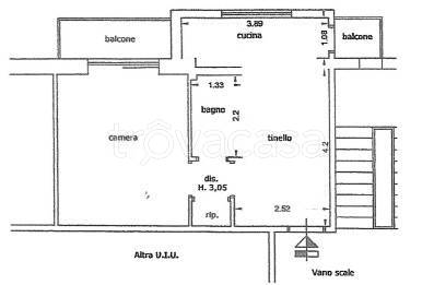
L'appartamento, situato nella zona OMI B3, è proposto in vendita (da AGENZIA IMMOBILIARE MARINA) a
145.000 € per una
superficie commerciale di
40 m² e quindi ad un prezzo per metro quadrato pari a
3625 €/m²
.
Tale prezzo
è leggermente meno conveniente di quello stimato da Caasa per immobili in vendita simili per tipologia, caratteristiche, classe energetica e localizzati nella stessa zona OMI, che è compreso tra
3.218 €/m² e
3.478 €/m².
La conoscenza con buona approssimazione della localizzazione dell'immobile ha consentito di utilizzare come raffronto i dati medi elaborati esattamente nella zona OMI di appertenenza (FASCIA COSTIERA IN PROSSIMITA` V.AURELIA E V.MORENE FINO AL MARE, TRAVER.OVES...) per appartamenti (da 2.400 €/m² a 4.020 €/m²) e per bivani (da 2.785 €/m² a 4.030 €/m²). Inoltre, Caasa ha potuto affinare la stima anche con la conoscenza della classe energetica (F) oltre che di alcune caratteristiche significative come la disponibilità di una cantina o la presenza dell'ascensore. In virtù di queste considerazioni i valori accettabili per l'offerta costituiscono un intervallo abbastanza limitato.
Mercato immobiliare a Taggia
Per quanto riguarda più in generale il comune di Taggia, sono presenti al momento oltre 500 annunci per
appartamenti in vendita (meno del 10% dell'intera provincia)
e il maggior numero di annunci per questa tipologia sono relativi proprio alla zona di Arma di Taggia.
Per quanto riguarda la richiesta media in zona Arma di Taggia, dove sorge l'appartamento, essa è pari a circa
3.310 €/m² per appartamenti in vendita.
Relativamente alla dinamica dei prezzi, possiamo dire che negli ultimi 6 mesi i prezzi medi in tutto il comune per appartamenti in vendita sono
sostanzialmente stabili (+0,48%).
NOVITÀ Il risultato che vedi dipende dai dati che siamo riusciti ad estrarre dall'annuncio: ottieni una stima più accuranta di questo immobile, inserendo dati più precisi.
N.B. L'Opinione di Caasa® è un servizio sperimentale realizzato tramite tecniche di Intelligenza Artificiale, fornito senza alcuna garanzia di correttezza e completezza. Leggi il disclaimer o segnalaci un problema.
IMMAGINI
IN SINTESI
DESCRIZIONE
con cantina con balcone con ascensore con angolo cottura
ARMA DI TAGGIA (IM) - A RIDOSSO DELLA VIA PRINCIPALE E A POCHI PASSI DALLE BELLISSIME SPIAGGE DI SABBIA, centralissimo appartamento termoautonomo in ordine al 2° piano con ascensore, composto da: tinello, angolo cottura, disimpegno con armadio a muro, camera matrimoniale, bagno finestrato con vasca. Due balconi. Ampia cantina. Prezzo richiesto: € 150.000 trattabili. - 15 (Rif. 9). Agenzia Immobiliare Marina 0184/44525 - 330/902811 - Facebook: AGENZIA IMMOBILIARE MARINA / Instagram: ag. Immobiliaremarina - Facebook: AGENZIA IMMOBILIARE MARINA / Instagram: ag. immobiliaremarina N.B.: La presente scheda, le informazioni ed i contenuti dei nostri annunci, brochure e pagine web non costituiscono elemento contrattuale e non vincolano in alcun modo l’agenzia; pertanto descrizione, planimetrie, misure e posizione sono da ritenersi del tutto indicative e non esaustive in relazione a un contratto di vendita della proprietà del tutto indicative e non esaustive in merito a un contratto di vendita della propriet

