Valutazione immobiliare indipendente, accurata e gratuita
Casa indipendente in vendita a Soldano in zona San Martino a 350.000 € (cod.64e4ef49)
Caasa non ha sufficienti informazioni per commentare la casa indipendente a Soldano in zona San Martino - 64e4ef49.
Analisi immobiliare
I dati in posseso di Caasa per quest'immobile sono insufficienti, inaffidabili o contraddittori per proporre un'analisi attendibile.
Mercato immobiliare a Soldano
Per quanto riguarda più in generale il comune di Soldano, sono presenti al momento circa cento annunci per
case indipendenti in vendita (meno del 5% dell'intera provincia) .
Per quanto riguarda la richiesta media in zona San Martino, dove sorge la casa indipendente, essa è pari a circa
2.030 €/m² per case indipendenti in vendita.
Relativamente alla dinamica dei prezzi, possiamo dire che negli ultimi 6 mesi i prezzi medi in tutto il comune per case indipendenti in vendita sono
in leggera diminuzione (-2,90%).
NOVITÀ Il risultato che vedi dipende dai dati che siamo riusciti ad estrarre dall'annuncio: ottieni una stima più accuranta di questo immobile, inserendo dati più precisi.
N.B. L'Opinione di Caasa® è un servizio sperimentale realizzato tramite tecniche di Intelligenza Artificiale, fornito senza alcuna garanzia di correttezza e completezza. Leggi il disclaimer o segnalaci un problema.
IMMAGINI
IN SINTESI
DESCRIZIONE
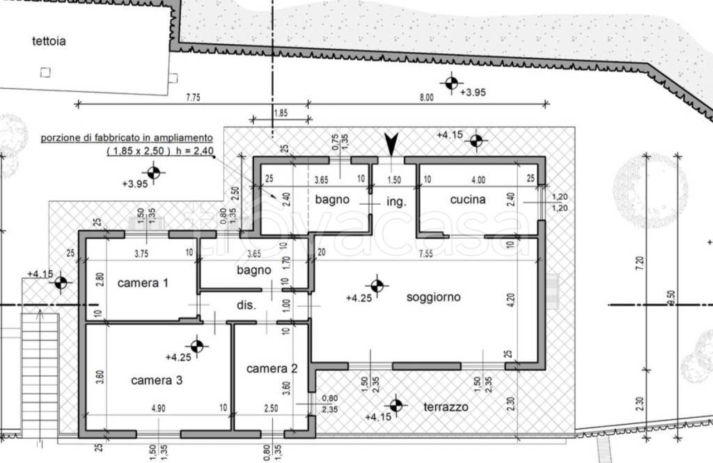
di nuova costruzione con terrazza con giardino con cantina con cucina abitabile con posto auto di nuova costruzione
RIF.0685 Soldano – Località San Martino In posizione tranquilla e soleggiata, proponiamo villa indipendente da ultimare, disposta su due livelli, con ampio terreno circostante di circa 3.000 mq. La proprietà è composta da: • Piano terra: soggiorno, cucina abitabile, tre camere da letto, doppi servizi e terrazzo panoramico. • Piano seminterrato: ampio box auto, cantina/deposito con possibilità di personalizzazione degli spazi. Soluzione ideale per chi cerca indipendenza, natura e privacy, con la possibilità di rifinire l’abitazione secondo il proprio gusto personale. Prezzo richiesto: € 350.000 trattabili

