Valutazione immobiliare indipendente, accurata e gratuita
L'Opinione di Caasa® per l'appartamento in vendita a Diano Marina a 320.000 € (cod.659cb783)
Secondo Caasa, per l'appartamento in vendita a Diano Marina, la richiesta di 320.000 € è equilibrata rispetto agli annunci simili.
Analisi immobiliare
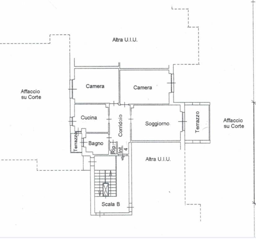
L'appartamento, situato nella zona OMI C1, è proposto in vendita a
320.000 € per una
superficie commerciale di
90 m² e quindi ad un prezzo per metro quadrato pari a
3555 €/m²
.
Tale valore
è perfettamente allineato a quello stimato da Caasa per immobili in vendita simili per tipologia, caratteristiche, classe energetica e localizzati nella stessa zona OMI, che è compreso tra
3.413 €/m² e
3.722 €/m².
La conoscenza con buona approssimazione della localizzazione dell'immobile ha consentito di utilizzare come raffronto i dati medi elaborati esattamente nella zona OMI di appertenenza (A MONTE DELL`EX TRACCIATO FERROVIARIO). Inoltre, Caasa ha potuto affinare la stima anche con la conoscenza della classe energetica (G) oltre che dello stato dell'immobile (da ristrutturare) e di alcune caratteristiche significative come il posto auto. Per questi motivi i valori accettabili per l'offerta costituiscono un intervallo abbastanza limitato.
Mercato immobiliare a Diano Marina
Per quanto riguarda più in generale il comune di Diano Marina, sono presenti al momento oltre 500 annunci per
appartamenti in vendita (meno del 5% dell'intera provincia)
e il maggior numero di annunci per questa tipologia sono relativi alla zona di Gorleri.
La dinamica dei prezzi in tutto il comune mostra che negli ultimi 6 mesi, i prezzi per appartamenti in vendita sono
in aumento (+4,47%).
NOVITÀ Il risultato che vedi dipende dai dati che siamo riusciti ad estrarre dall'annuncio: ottieni una stima più accuranta di questo immobile, inserendo dati più precisi.
N.B. L'Opinione di Caasa® è un servizio sperimentale realizzato tramite tecniche di Intelligenza Artificiale, fornito senza alcuna garanzia di correttezza e completezza. Leggi il disclaimer o segnalaci un problema.
IMMAGINI
IN SINTESI
DESCRIZIONE
da ristrutturare con posto auto da ristrutturare
A soli 100 metri dal mare, si trova un quadrilocale che offre un'opportunità unica per chi cerca una residenza comoda e ben posizionata. Situato al piano medio di un edificio costruito nel 1970, l'appartamento si estende su 90 mq, offrendo spazi ben distribuiti e funzionali. La proprietà è circondata da un ambiente verde, ideale per chi desidera vivere in un contesto tranquillo senza rinunciare alla vicinanza con il mare. L'appartamento comprende quattro locali, perfetti per accogliere una famiglia o per chi necessita di spazi aggiuntivi per lavoro o hobby. Un ulteriore vantaggio è rappresentato dal box auto, una comodità rara in una zona così centrale. Questa soluzione abitativa rappresenta un equilibrio tra natura e praticità, offrendo un rifugio sereno a pochi passi dalle spiagge di Diano Marina

