Valutazione immobiliare indipendente, accurata e gratuita

Casa semindipendente in vendita a Castellaro a 79.000 € (cod.64ed9d51)

Caasa non ha sufficienti informazioni per commentare la casa semindipendente in vendita a Castellaro - 64ed9d51.

Analisi immobiliare
I dati in posseso di Caasa per quest'immobile sono insufficienti, inaffidabili o contraddittori per proporre un'analisi attendibile.
Mercato immobiliare a Castellaro
Per quanto riguarda più in generale il comune di Castellaro, sono presenti al momento più di trenta annunci per case semindipendenti in vendita (meno dell'1% dell'intera provincia) .

Relativamente alla dinamica dei prezzi, possiamo dire che negli ultimi 6 mesi i prezzi medi in tutto il comune per case semindipendenti in vendita sono in forte aumento (+26,88%).

NOVITÀ Il risultato che vedi dipende dai dati che siamo riusciti ad estrarre dall'annuncio: ottieni una stima più accuranta di questo immobile, inserendo dati più precisi.

N.B. L'Opinione di Caasa® è un servizio sperimentale realizzato tramite tecniche di Intelligenza Artificiale, fornito senza alcuna garanzia di correttezza e completezza. Leggi il disclaimer o segnalaci un problema.

IMMAGINI

IN SINTESI

Prezzo:
79.000 €
Superficie:
95 m²
Prezzo al m²:
831 €/m²
Piano:
n.d. (SENZA ascensore)
Bagni:
1
Classe energetica:
G
Città:
Castellaro (IM)
Zona OMI:
B1 (CENTRO URBANO)
Indirizzo:
Aggiornato:
mer 9 luglio 2025

PROPOSTO DA:

Immobildream

DESCRIZIONE

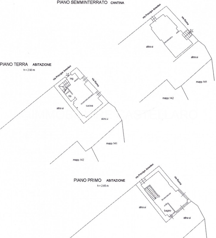
con terrazza con termocondizionamento con cantina con riscaldamento autonomo senza ascensore con cucina abitabile

Nel cuore pulsante del centro storico di Castellaro, proponiamo in vendita un'esclusiva porzione di testa di casa a schiera. Questa affascinante proprietà si sviluppa su tre livelli e offre una vista sul mare, rendendola la scelta ideale per chi cerca sia comfort che bellezza. Il piano seminterrato accoglie due locali adibiti a tavernetta o sgombro, perfetti per ospitare amici e familiari o come spazio dedicato al relax. Salendo al primo piano, troverai un disimpegno luminoso che conduce a un soggiorno ampio e accogliente, abbinato a una cucina abitabile spaziosa. Un comodo ripostiglio completa questo livello funzionale. Al secondo piano è situata la camera da letto principale accompagnata da un bagno e dal terrazzo verandato; uno spazio privato dove poter gustare il caffè del mattino mentre ci si gode l'incantevole panorama marittimo. La posizione centrale dell'immobile lo rende particolarmente interessante: nelle immediate vicinanze puoi trovare ristoranti tipici della cucina ligure, negozi caratteristici ed altre comodità utili quotidianamente. Inoltre, Castellaro è celebre non solo per le sue tradizioni storiche ma anche per i suoi eventi culturali durante tutto l'anno. Questa proposta immobiliare vanta zero spese condominiali e rappresenta quindi un'opportunità d'investimento unica nel suo genere! Non lasciarti sfuggire questa occasione! Per ulteriori informazioni o per prenotare una visita all'immobile, ti invitiamo a contattare subito la nostra agenzia. Saremmo lieti di assisterti nella tua ricerca della casa dei tuoi sogni

  • bachecacase.com
  • bancadellecase.it
  • idealista.it
  • ioaffitto.it