Valutazione immobiliare indipendente, accurata e gratuita
L'Opinione di Caasa® per l'appartamento in vendita a Bordighera a 515.000 € (cod.64fe6fa4)
Secondo Caasa, per l'appartamento in vendita a Bordighera, la richiesta di 515.000 € è significativamente svantaggiosa rispetto agli annunci simili.
Analisi immobiliare
L'appartamento, situato nella zona OMI B3, è proposto in vendita a
515.000 € per una
superficie commerciale di
79 m² e quindi ad un prezzo per metro quadrato pari a
6518 €/m²
.
Questo valore
è significativamente più alto di quello stimato da Caasa per immobili in vendita simili per tipologia e caratteristiche, presenti nella stessa zona, che è compreso tra
5.412 €/m² e
5.880 €/m².
Considerata la posizione dell'appartamento sono stati utilizzati come raffronto i valori medi nelle zone limitrofe . Caasa non è stata in grado di determinare la classe energetica, ma ad affinare la stima hanno contribuito però anche lo stato dell'immobile (di nuova costruzione) e la presenza di alcune caratteristiche significative come la presenza dell'ascensore o il posto auto. Per queste considerazioni l'intervallo dei valori possibili per l'offerta è relativamente ampio.
Mercato immobiliare a Bordighera
Per quanto riguarda più in generale il comune di Bordighera, sono presenti al momento ben oltre mille annunci per
appartamenti in vendita (quasi il 20% dell'intera provincia)
e il maggior numero di annunci per questa tipologia sono relativi alla zona di Sasso.
Per quanto riguarda la dinamica dei prezzi, negli ultimi 6 mesi i prezzi medi in tutto il comune per appartamenti in vendita sono
in forte aumento (+10,14%).
NOVITÀ Il risultato che vedi dipende dai dati che siamo riusciti ad estrarre dall'annuncio: ottieni una stima più accuranta di questo immobile, inserendo dati più precisi.
N.B. L'Opinione di Caasa® è un servizio sperimentale realizzato tramite tecniche di Intelligenza Artificiale, fornito senza alcuna garanzia di correttezza e completezza. Leggi il disclaimer o segnalaci un problema.
IMMAGINI
IN SINTESI
DESCRIZIONE
di nuova costruzione con posto auto con terrazza con termocondizionamento con ascensore con angolo cottura di nuova costruzione
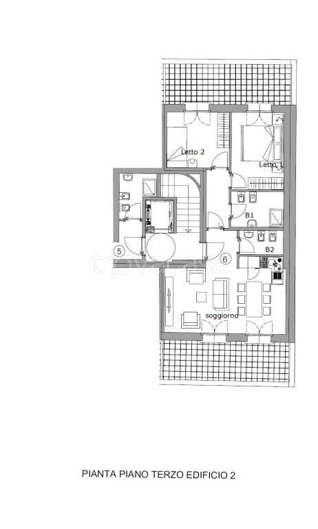
Splendido appartamento di nuova costruzione a Bordighera con affaccio sulla futura Piazza Trento. Al terzo ed ultimo di una palazzina di 6 unità totali in costruzione appartamento composto di: ingresso su zona giorno con angolo cottura e terrazza, due bagni e due camere da letto con affaccio anch'esse su terrazzo. Palazzina servita da ascensore a 70 m dal mare in un contesto completamente riqualificato e vicino a tutti i servizi. Tutti gli appartamenti sono realizzati in classe A+ e saranno consegnati completi di finiture scelte da capitolato. Riscaldamento ad aria con impianto freddo/caldo e canalizzazione in tutte le stanze. Impianti di ultima generazione e cappotto esterno garantiscono altissime prestazioni energetiche di conseguenza tutte le unità risultano un ottimo investimento in vista delle nuove normative europee in materia di ecosostenibilità e consumi. Ambienti caldi e luminosi grazie all'ottima esposizione verso il mare. Affacciati sul mare nel futuro ecosostenibile di Bordighera a due passi da i principali servizi! Possibilità di acquisto box auto a parte come da planimetria allegata


