Valutazione immobiliare indipendente, accurata e gratuita
Appartamento in vendita a Zoagli a 76.425 € (cod.65320acf)
Caasa non ha sufficienti informazioni per commentare l'appartamento in vendita a Zoagli - 65320acf.
Analisi immobiliare
I dati in posseso di Caasa per quest'immobile sono insufficienti, inaffidabili o contraddittori per proporre un'analisi attendibile.
Mercato immobiliare a Zoagli
Per quanto riguarda più in generale il comune di Zoagli, sono presenti al momento più di 150 annunci per
appartamenti in vendita (meno del 5% dell'intera provincia)
e il maggior numero di annunci per questa tipologia sono relativi alla zona di Sant'Ambrogio.
La dinamica dei prezzi in tutto il comune mostra che negli ultimi 6 mesi, i prezzi per appartamenti in vendita sono
in debole diminuzione (-1,71%).
NOVITÀ Il risultato che vedi dipende dai dati che siamo riusciti ad estrarre dall'annuncio: ottieni una stima più accuranta di questo immobile, inserendo dati più precisi.
N.B. L'Opinione di Caasa® è un servizio sperimentale realizzato tramite tecniche di Intelligenza Artificiale, fornito senza alcuna garanzia di correttezza e completezza. Leggi il disclaimer o segnalaci un problema.
IMMAGINI
IN SINTESI
PROPOSTO DA:
Astexte Genova
DESCRIZIONE
con cantina con angolo cottura in asta giudiziaria
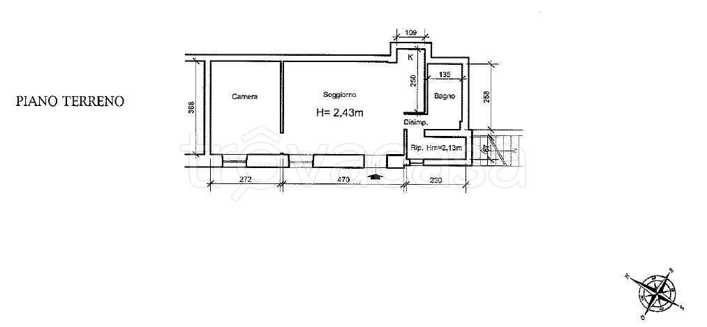
Piena proprietà dei seguenti beni: a) appartamento in ZOAGLI (GE), Via B. Brea civ. n. 30, int. 7B, posto al piano terreno, composto da soggiorno con angolo cottura, una camera, un bagno con disimpegno ed un ripostiglio ricavato nel sottoscala; b) terreno completamente asfaltato di 60 mq circa, in parte antistante il cancello carrabile distinto con il civ. n. 29 di Via Brea ed in parte retrostante il cancello stesso; c) terreno di 1480mq circa, Il primo tratto è antistante l'immobile oggetto di esecuzione. L'immobile viene venduto dal tribunale tramite asta giudiziaria e il prezzo indicato si riferisce all'offerta minima. Per chi acquista come prima casa, sono previste agevolazioni. Cerchi casa all'Asta ? Ti sei già informato ? Pensi che il mutuo al 100% sia solo una pubblicità ? Astexte, la soluzione! Cosa aspetti ? HAI UNA CASA PIGNORATA ? POSSIAMO AIUTARTI ! CHIAMACI ALLO 0109841034

