Valutazione immobiliare indipendente, accurata e gratuita
Appartamento in vendita ad Uscio a 48.000 € (cod.6522e0ec)
Caasa non ha sufficienti informazioni per commentare l'appartamento in vendita ad Uscio - 6522e0ec.
Analisi immobiliare
I dati in posseso di Caasa per quest'immobile sono insufficienti, inaffidabili o contraddittori per proporre un'analisi attendibile.
Mercato immobiliare ad Uscio
Per quanto riguarda più in generale il comune di Uscio, sono presenti al momento più di cinquanta annunci per
appartamenti in vendita (meno dell'1% dell'intera provincia) .
Per quanto riguarda la dinamica dei prezzi, negli ultimi 6 mesi i prezzi medi in tutto il comune per appartamenti in vendita sono
in forte calo (-11,45%).
NOVITÀ Il risultato che vedi dipende dai dati che siamo riusciti ad estrarre dall'annuncio: ottieni una stima più accuranta di questo immobile, inserendo dati più precisi.
N.B. L'Opinione di Caasa® è un servizio sperimentale realizzato tramite tecniche di Intelligenza Artificiale, fornito senza alcuna garanzia di correttezza e completezza. Leggi il disclaimer o segnalaci un problema.
IMMAGINI
IN SINTESI
PROPOSTO DA:
Astexte Genova
DESCRIZIONE
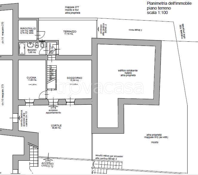
con terrazza con cantina in asta giudiziaria con giardino con cortile
BENE 1: Piena proprietà dell’immobile sito in Uscio, Via Craì 12/1 di due piani: il terreno è composto da soggiorno, cucina, vano scala, sottoscale, disimpegno, bagno, terrazzo, ripostiglio sul terrazzo e cortile; il primo è composto da due camere e disimpegno caposcala. BENE 2: Piena proprietà della cantina in Uscio, Via Craì 41/16 situata al piano seminterrato, sottostante al civico 12 di Via Craì, composta da tre locali e da un cortile antistante l’ingresso. L'immobile viene venduto dal tribunale tramite asta giudiziaria e il prezzo indicato si riferisce all'offerta minima. Per chi acquista come prima casa, sono previste agevolazioni. Cerchi casa all'Asta ? Ti sei già informato ? Pensi che il mutuo al 100% sia solo una pubblicità ? Astexte, la soluzione! Cosa aspetti ? HAI UNA CASA PIGNORATA ? POSSIAMO AIUTARTI ! CHIAMACI ALLO 0109841034

