Valutazione immobiliare indipendente, accurata e gratuita
Appartamento in vendita a Sestri Levante in zona Riva Trigoso a 168.630 € (cod.651bf019)
Caasa non ha sufficienti informazioni per commentare l'appartamento a Sestri Levante in zona Riva Trigoso - 651bf019.
Analisi immobiliare
I dati in posseso di Caasa per quest'immobile sono insufficienti, inaffidabili o contraddittori per proporre un'analisi attendibile.
Mercato immobiliare a Sestri Levante
Per quanto riguarda più in generale la città di Sestri Levante, sono presenti al momento oltre 500 annunci per
appartamenti in vendita (meno del 5% dell'intera provincia)
e il maggior numero di annunci per questa tipologia sono relativi proprio alla zona di Riva Trigoso.
La richiesta media nella zona dove sorge l'appartamento (Riva Trigoso) è pari a
3.405 €/m² e ne fa la più pregiata della città .
Relativamente alla dinamica dei prezzi, possiamo dire che negli ultimi 6 mesi i prezzi medi in tutta la città per appartamenti in vendita sono
sostanzialmente stabili (-1,06%).
NOVITÀ Il risultato che vedi dipende dai dati che siamo riusciti ad estrarre dall'annuncio: ottieni una stima più accuranta di questo immobile, inserendo dati più precisi.
N.B. L'Opinione di Caasa® è un servizio sperimentale realizzato tramite tecniche di Intelligenza Artificiale, fornito senza alcuna garanzia di correttezza e completezza. Leggi il disclaimer o segnalaci un problema.
IMMAGINI
IN SINTESI
PROPOSTO DA:
HOME AND BUSINESS PROJECT
DESCRIZIONE
con cantina con balcone in asta giudiziaria con possibilità di mutuo
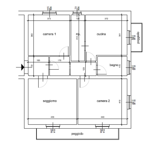
appartamento in Fraz di Riva Trigoso, int 3, Piano 2, 3 vani oltre cucina, bagno e ripostiglio, sup netta mq 87, balconi scoperti mq 10 Le fotografie allegate hanno finalità puramente illustrative e potrebbero non rappresentare in modo esaustivo l’im […]
