Valutazione immobiliare indipendente, accurata e gratuita
Appartamento in vendita a Sestri Levante in zona Riva Trigoso a 168.630 € (cod.6505bc88)
Caasa non ha sufficienti informazioni per commentare l'appartamento a Sestri Levante in zona Riva Trigoso - 6505bc88.
Analisi immobiliare
I dati in posseso di Caasa per quest'immobile sono insufficienti, inaffidabili o contraddittori per proporre un'analisi attendibile.
Mercato immobiliare a Sestri Levante
Per quanto riguarda più in generale la città di Sestri Levante, sono presenti al momento quasi 500 annunci per
appartamenti in vendita (meno del 5% dell'intera provincia)
e il maggior numero di annunci per questa tipologia sono relativi proprio alla zona di Riva Trigoso.
La richiesta media nella zona dove sorge l'appartamento (Riva Trigoso) è pari a
3.480 €/m² e ne fa la più pregiata della città .
Per quanto riguarda la dinamica dei prezzi, negli ultimi 6 mesi i prezzi medi in tutta la città per appartamenti in vendita sono
sostanzialmente stabili (-1,06%).
NOVITÀ Il risultato che vedi dipende dai dati che siamo riusciti ad estrarre dall'annuncio: ottieni una stima più accuranta di questo immobile, inserendo dati più precisi.
N.B. L'Opinione di Caasa® è un servizio sperimentale realizzato tramite tecniche di Intelligenza Artificiale, fornito senza alcuna garanzia di correttezza e completezza. Leggi il disclaimer o segnalaci un problema.
IMMAGINI
IN SINTESI
PROPOSTO DA:
BIPROGET GROUP Gallarate Novara Varese Sanremo Verbania
DESCRIZIONE
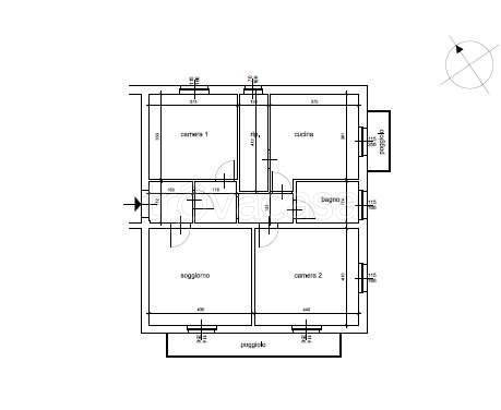
con posto auto con cantina con balcone senza ascensore in asta giudiziaria
OTTIMA OCCASIONE - ASTA IMMOBILIARE Appartamento posto al piano secondo (3° f.t.) di un fabbricato composto da tre vani oltre cucina, bagno e ripostiglio e balconi Il fabbricato è privo di ascensore. Non esistono cortili e posti auto condominiali. In […]
