Valutazione immobiliare indipendente, accurata e gratuita
Negozio in vendita a Serra Riccò a 108.974 € (cod.64defa77)
Caasa non ha sufficienti informazioni per commentare il negozio in vendita a Serra Riccò - 64defa77.
Analisi immobiliare
I dati in posseso di Caasa per quest'immobile sono insufficienti, inaffidabili o contraddittori per proporre un'analisi attendibile.
Mercato immobiliare a Serra Riccò
Per quanto riguarda più in generale il comune di Serra Riccò, sono presenti al momento più di trenta annunci per
negozi in vendita (meno dell'1% dell'intera provincia)
e il maggior numero di annunci per questa tipologia sono relativi alla zona di Serra.
Vedi altre informazioni direttamente su
Mercato-Immobiliare.info
NOVITÀ Il risultato che vedi dipende dai dati che siamo riusciti ad estrarre dall'annuncio: ottieni una stima più accuranta di questo immobile, inserendo dati più precisi.
N.B. L'Opinione di Caasa® è un servizio sperimentale realizzato tramite tecniche di Intelligenza Artificiale, fornito senza alcuna garanzia di correttezza e completezza. Leggi il disclaimer o segnalaci un problema.
IMMAGINI
IN SINTESI
DESCRIZIONE
in asta giudiziaria
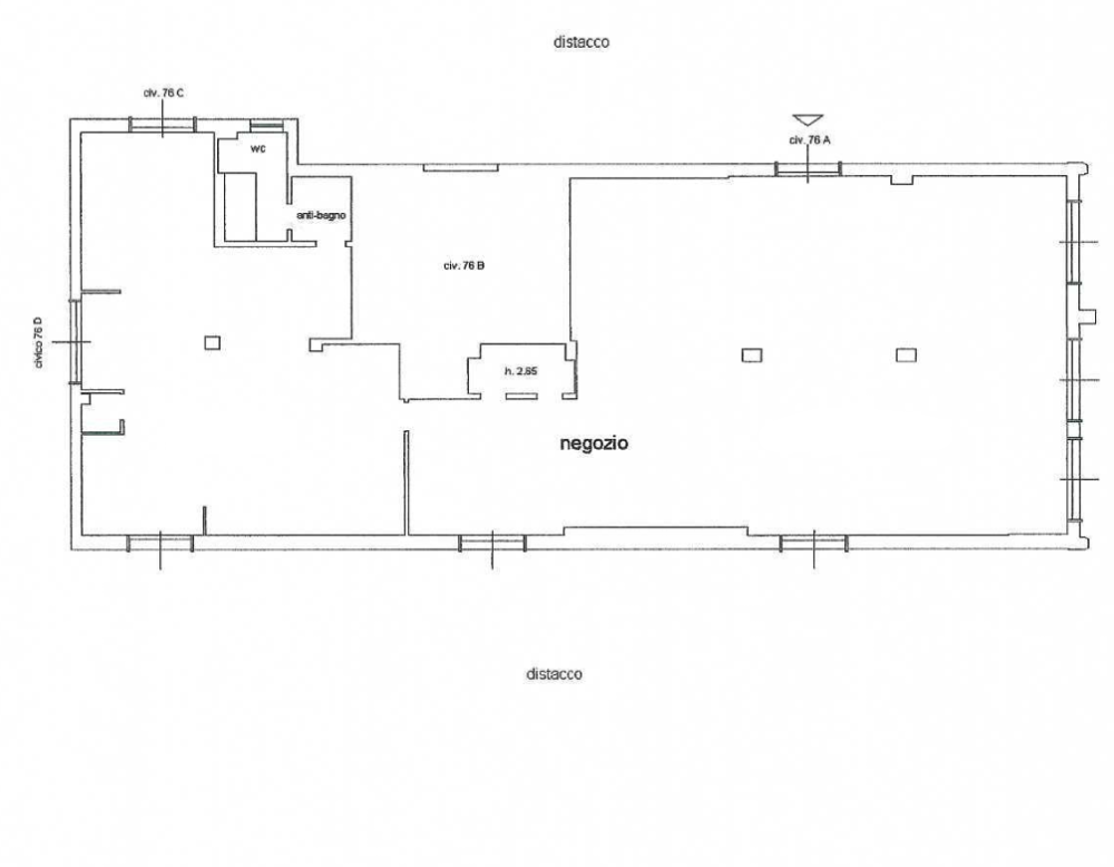
PIENA PROPRIETA' DI LOCALE AD USO NEGOZIO A SERRA RICCO' (GE) IN VIA FRATELLI CANEPA 76A-76C-76D AL PIANO TERRA CON ANNESSO SERVIZIO IGIENICO. SUPERFICIE CATASTALE 202 MQ. - Il Prezzo visualizzato è la Base d'Asta in quanto l’immobile è oggetto di esecuzione immobiliare venduto tramite Asta Giudiziaria. - L'immobile aggiudicato, viene venduto libero e sgombro da persone cose ed ipoteche nello stato di fatto e di diritto in cui si trova. - Non rappresentiamo il Tribunale, ma lavoriamo nell'esclusivo interesse del potenziale acquirente per garantire un acquisto sicuro. - I consulenti di ASTE ITALIA ti assisteranno in tutte le attività dell'iter giudiziario dalla visita dell'immobile fino alla consegna chiavi. - Contatta il nostro Servizio Clienti , i nostri operatori sono a disposizione per chiarire i molteplici dubbi per partecipare alle ASTE






