Valutazione immobiliare indipendente, accurata e gratuita
L'Opinione di Caasa® per l'appartamento in vendita a Rapallo a 380.000 € (cod.6572718e)
Secondo Caasa, per l'appartamento in vendita a Rapallo, la richiesta di 380.000 € è significativamente vantaggiosa rispetto agli annunci simili.
Analisi immobiliare
L'appartamento, situato nei pressi di Corso Italia nella zona OMI B2, è proposto in vendita (da GOBELLO LORENZO IMMOBILIARE) a
380.000 € per una
superficie commerciale di
129 m² e quindi ad un prezzo per metro quadrato pari a
2945 €/m²
.
Questo prezzo
è più vantaggioso di quello stimato da Caasa per immobili in vendita simili per tipologia, caratteristiche, classe energetica e localizzati nella stessa zona OMI, che è compreso tra
3.563 €/m² e
3.930 €/m².
La conoscenza con buona approssimazione della localizzazione dell'immobile ha consentito di utilizzare come raffronto i dati medi elaborati esattamente nella zona OMI di appertenenza (ZONA COSTIERA E CENTRO STORICO (S.MICHELE DI PAGANA)). Inoltre, Caasa ha potuto affinare la stima anche con la conoscenza della classe energetica (F) oltre che dello stato dell'immobile (di recente ristrutturazione) e di alcune caratteristiche significative come la disponibilità di una cantina. In virtù di queste considerazioni è possibile considerare un intervallo di valori accettabili per l'offerta abbastanza limitato.
Mercato immobiliare a Rapallo
Per quanto riguarda più in generale la città di Rapallo, sono presenti al momento ben oltre mille annunci per
appartamenti in vendita (quasi il 20% dell'intera provincia)
e il maggior numero di annunci per questa tipologia sono relativi alla zona di San Michele di Pagana.
Possiamo inoltre considerare che in tutta la città negli ultimi 6 mesi, i prezzi per appartamenti in vendita sono
sostanzialmente stabili (+1,07%).
NOVITÀ Il risultato che vedi dipende dai dati che siamo riusciti ad estrarre dall'annuncio: ottieni una stima più accuranta di questo immobile, inserendo dati più precisi.
N.B. L'Opinione di Caasa® è un servizio sperimentale realizzato tramite tecniche di Intelligenza Artificiale, fornito senza alcuna garanzia di correttezza e completezza. Leggi il disclaimer o segnalaci un problema.
IMMAGINI
IN SINTESI
PROPOSTO DA:
GOBELLO LORENZO IMMOBILIARE
Piazza Matteotti, 6, Recco (GE)
Verificata da Caasa®
DESCRIZIONE
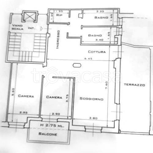
di recente ristrutturazione con terrazza con cantina di recente ristrutturazione con cucina abitabile
Rif. 1556 – Rapallo – Via Della Libertà – Scorcio mare – Vicino passeggiata a mare – Ampio Trilocale di 110 MQ con Terrazza vivibile al piano – Termoautonomo – Completamente ristrutturato con finiture eccellenti – Aria condizionata – Cantina – Composto da: Ingresso – Soggiorno ampio – Cucina abitabile – 2 Bagni con finestra – Ripostiglio – Lavanderia – 2 Camere – Cantina – 2 Terrazze vivibili al piano – Richiesta Euro 380.000,00 – Gobleu Immobiliare – PER INFO DIRETTE E APPUNTAMENTI 3665914174 SU WHATSAPP OPPURE DIRETTAMENTE IN AGENZIA IN RAPALLO CORSO ITALIA 2 APERTA TUTTI I GIORNI ESCLUSO FESTIVI FOR DIRECT INFO AND APPOINTMENTS 3665914174 ON WHATSAPP OR DIRECTLY AT THE AGENCY IN RAPALLO CORSO ITALIA 2 OPEN EVERY DAY EXCEPT HOLIDAYS

