Valutazione immobiliare indipendente, accurata e gratuita
Appartamento in vendita a Rapallo a 66.375 € (cod.656db53d)
Caasa non ha sufficienti informazioni per commentare l'appartamento in vendita a Rapallo - 656db53d.
Analisi immobiliare
I dati in posseso di Caasa per quest'immobile sono insufficienti, inaffidabili o contraddittori per proporre un'analisi attendibile.
Mercato immobiliare a Rapallo
Per quanto riguarda più in generale la città di Rapallo, sono presenti al momento ben oltre mille annunci per
appartamenti in vendita (quasi il 20% dell'intera provincia)
e il maggior numero di annunci per questa tipologia sono relativi alla zona di San Michele di Pagana.
Relativamente alla dinamica dei prezzi, possiamo dire che negli ultimi 6 mesi i prezzi medi in tutta la città per appartamenti in vendita sono
in debole aumento (+1,90%).
NOVITÀ Il risultato che vedi dipende dai dati che siamo riusciti ad estrarre dall'annuncio: ottieni una stima più accuranta di questo immobile, inserendo dati più precisi.
N.B. L'Opinione di Caasa® è un servizio sperimentale realizzato tramite tecniche di Intelligenza Artificiale, fornito senza alcuna garanzia di correttezza e completezza. Leggi il disclaimer o segnalaci un problema.
IMMAGINI
IN SINTESI
PROPOSTO DA:
Astexte Genova
DESCRIZIONE
da ristrutturare con terrazza con termocondizionamento con ascensore da ristrutturare in asta giudiziaria
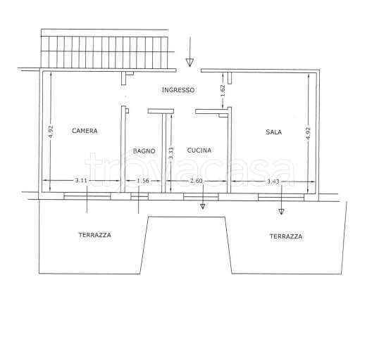
Trattasi di appartamento facente parte di un condominio di media dimensione realizzato nei primo anni 70; la struttura portante è in cemento armato mentre i tamponamenti sono in latero cemento, la copertura è a doppia falda inclinata. Lo stabile è servito da ascensore e scala ai singoli piani residenziali per un totale di quattro oltre al piano seminterrato. L'appartamento dispone di: ingresso, cucina, bagno, sala e camera da letto oltre a due terrazze di pertinenza. Internamente l'alloggio è caratterizzato da pavimenti in piastrelle di ceramica, muri tinteggiati, cucina e bagno piastrellati. Il riscaldamento è centralizzato ( acqua calda e termosifoni). L'immobile viene venduto dal tribunale tramite asta giudiziaria e il prezzo indicato si riferisce all'offerta minima. Per chi acquista come prima casa, sono previste agevolazioni. Cerchi casa all'Asta ? Ti sei già informato ? Pensi che il mutuo al 100% sia solo una pubblicità ? Astexte, la soluzione! Cosa aspetti ? HAI UNA CASA PIGNORATA ? POSSIAMO AIUTARTI ! CHIAMACI ALLO 0109841034

