Valutazione immobiliare indipendente, accurata e gratuita
Appartamento in vendita a Genova in zona Sturla a 145.000 € (cod.6553552d)
Caasa non ha sufficienti informazioni per commentare l'appartamento in vendita a Genova in zona Sturla - 6553552d.
Analisi immobiliare
I dati in posseso di Caasa per quest'immobile sono insufficienti, inaffidabili o contraddittori per proporre un'analisi attendibile.
Mercato immobiliare a Genova
Per quanto riguarda più in generale la città di Genova, sono presenti al momento ben oltre 5.000 annunci per
appartamenti in vendita (più della metà dell'intera provincia)
e il maggior numero di annunci per questa tipologia sono relativi alla zona di Sestri Ponente, mentre la zona di Sturla risulta molto meno attiva considerando il numero di annunci presenti.
La richiesta media nella zona dove sorge l'appartamento (Sturla pressi Via Antica Romana di Quinto) è pari a
3.170 €/m², molto vicina ai valori della zona Nervi che sono i più alti della città .
Relativamente alla dinamica dei prezzi, possiamo dire che negli ultimi 6 mesi i prezzi medi in tutta la città per appartamenti in vendita sono
in leggero aumento (+3,17%).
NOVITÀ Il risultato che vedi dipende dai dati che siamo riusciti ad estrarre dall'annuncio: ottieni una stima più accuranta di questo immobile, inserendo dati più precisi.
N.B. L'Opinione di Caasa® è un servizio sperimentale realizzato tramite tecniche di Intelligenza Artificiale, fornito senza alcuna garanzia di correttezza e completezza. Leggi il disclaimer o segnalaci un problema.
IMMAGINI
IN SINTESI
PROPOSTO DA:
Home Gallery
DESCRIZIONE
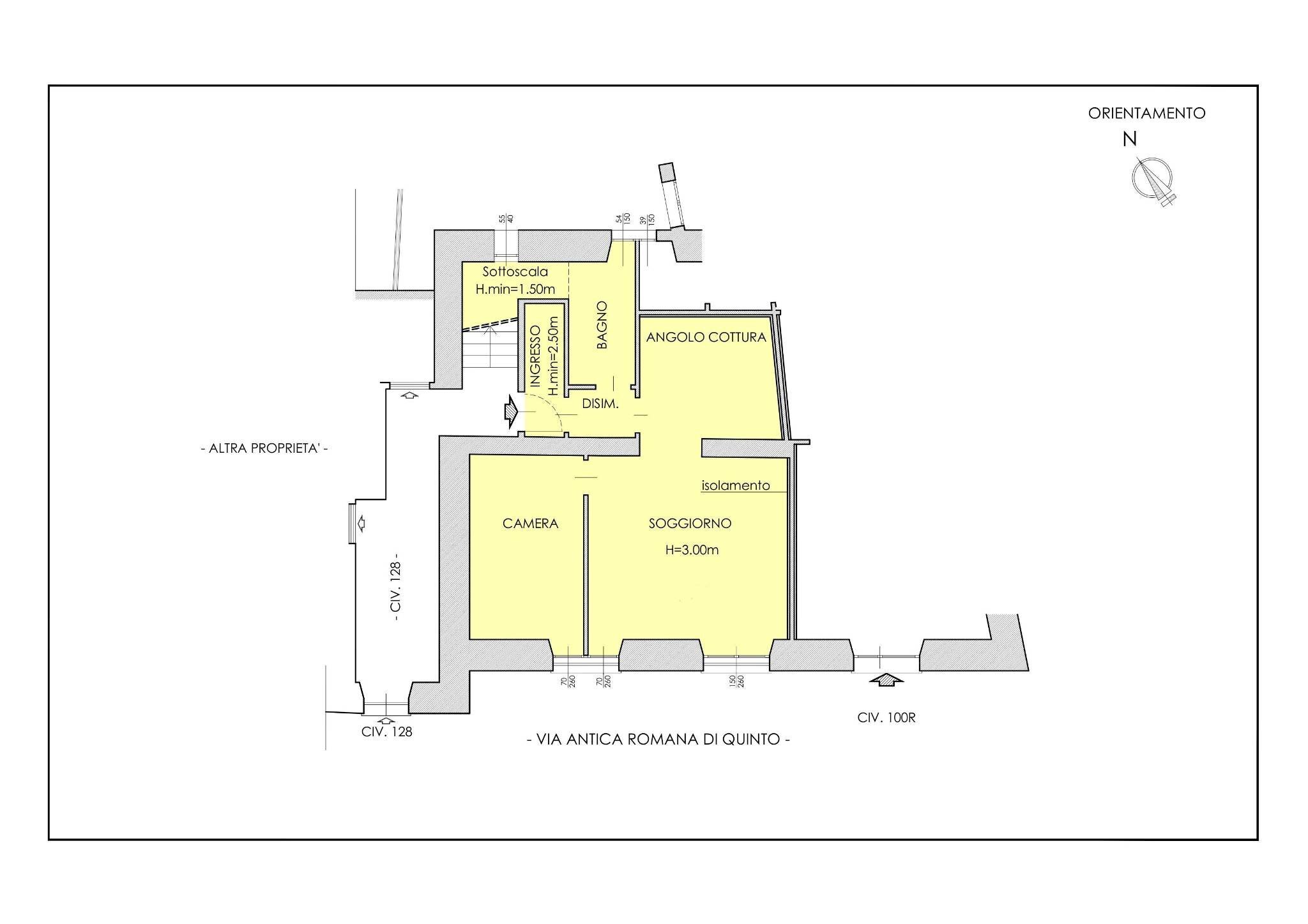
con cantina con termocondizionamento con angolo cottura
QUINTO adiacente a Via Filzi situato a soli 100 metri dalla stazione ferroviaria, questo appartamento di 60 mq è la soluzione ideale per chi cerca un investimento o una nuova casa. La posizione è invidiabile, con negozi, il mare e giardinetti a pochi passi, perfetti per godere delle belle giornate all'aperto. L'immobile, da personalizzare secondo i propri gusti, è composto da un ingresso accogliente, un soggiorno luminoso, un cucinotto funzionale, una camera da letto spaziosa e un bagno. Inoltre, è presente un ripostiglio che offre ulteriore spazio per riporre oggetti. Questo appartamento al piano terra, dotato di accesso per persone con mobilità ridotta, è perfetto anche per chi cerca un ambiente comodo e pratico. Il riscaldamento a pompa di calore garantisce comfort in ogni stagione. Non perdere l'opportunità di investire in una proprietà con grande potenziale per affitti brevi. Contattaci per maggiori informazioni e per organizzare una visita! Per informazioni e appuntamenti chiamare HOME GALLERY tel. 010/8609640 - email: - sito: - Sede di QUINTO in Via A. Gianelli 103-105 r. Genova - sede di ALBARO in Via Bocchella 4 - sede di STURLA in Via Sturla 10 - sede di LAVAGNA nel Porticciolo




